Page 201 of 379

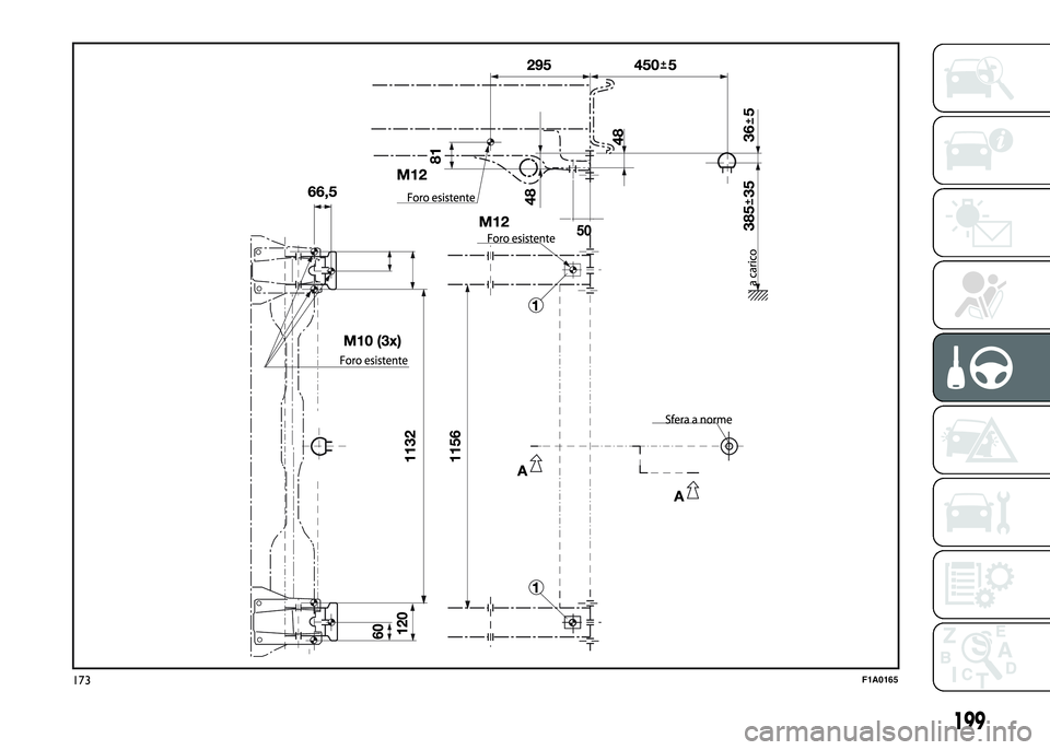
Installatieschema voor
Laadbak- en Chassis-
cabineversies fig. 173
Een andere trekhaak speciaal voor
Laadbak- en Chassis-cabineversies
wordt getoond in fig. 173.
De structuur Ø moet bevestigd worden
in de aangegeven punten met in totaal
6 M10x1,25-schroeven en 4 M12-
schroeven.
MAX. GEWICHT OP KOGEL: 100/120
kg afhankelijk van het laadvermogen
(zie tabel “Gewichten” in het hoofdstuk
“Technische gegevens”).
143)
BELANGRIJK
140) Het ABS-systeem waarmee het
voertuig uitgerust kan zijn, regelt
niet het remsysteem van de
aanhanger. Wees bijzonder
voorzichtig op gladde wegen.141) Wijzig nooit het remsysteem
van het voertuig om de
remwerking van de aanhanger
aan te passen. Het remsysteem
van de aanhanger moet volledig
onafhankelijk zijn van het
hydraulische systeem van het
voertuig.
142) Na montage moeten de
schroefgaten worden afgedicht
om het binnendringen van
uitlaatgassen te voorkomen.
143) Na montage moeten de
schroefgaten worden afgedicht
om het binnendringen van
uitlaatgassen te voorkomen.
197
Page 202 of 379
M12
172F1A0164
198
STARTEN EN RIJDEN
Page 203 of 379
Page 204 of 379

AANWIJZINGEN VOOR
HET GEBRUIK VAN DE
VERWIJDERBARE
TREKSTANG MET
KOGELKOP
37) 38) 39) 40) 41) 42)
Controleer, vóór het wegrijden, als volgt
of de verwijderbare trekstang met
kogelkop correct vergrendeld is:
❒Het groene merkteken van het
vliegwiel moet samenvallen met het
groene merkteken op de trekstang.
❒Het vliegwiel staat in de stopstand op
de trekhaak (zonder opening).
❒Vergrendeld slot en sleutel
verwijderd. Het vliegwiel kan niet
verwijderd worden.
❒Kogelkop stevig bevestigd in de
zittingbuis. Controleer dit er met
de hand aan te schudden.
De montageprocedure moet herhaald
worden als aan een van de 4
gecontroleerde vereisten niet is
voldaan.
Zelfs als maar aan één van de vereisten
niet is voldaan, dan mag de trekhaak
niet gebruikt worden, aangezien er
in dat geval risico op ongevallen
bestaat. Neem contact op met de
fabrikant van het onderdeel.De trekstang met kogelkop kan met de
hand gemonteerd en verwijderd
worden, er zijn geen gereedschappen
nodig.
Gebruik nooit gereedschappen of
middelen, want dan zou het
mechanisme beschadigd kunnen
raken.
Nooit ontgrendelen indien er een
aanhanger is aangekoppeld of als er
een rek gemonteerd is.
Wanneer gereden wordt zonder
aanhanger of rek, moet de trekhaak
met kogelkop verwijderd worden en
moet de afsluitplug altijd in de
zittingbuis geplaatst zijn. Dit is met
name van toepassing als de gegevens
op de kentekenplaat of onderdelen
van het verlichtingssysteem minder
goed zichtbaar zijn.Verwijderbare trekstang
met kogelkopfig. 174 - fig.
175 - fig. 176
1. Zittingbuis - 2. Trekstang met
kogelkop - 3. Vergrendelingskogels - 4.
Ontkoppelingshendel - 5. Vliegwiel -
6. Dop - 7. Sleutel - 8. Rood merkteken
(vliegwiel) - 9. Groen merkteken
(vliegwiel) - 10. Groen merkteken
(trekstang) - 11. Symbool (bediening
ontgrendeling) - 12. Afsluitplug - 13.
Koppelingspen - 14. Geen opening
tussen 2 en 5 - 15. Opening van
ongeveer 5 mm
174F1A0380
200
STARTEN EN RIJDEN
Page 205 of 379

.
De trekstang met
kogelkop installeren
1. Verwijder de plug uit de zittingbuis.
De trekstang met kogelkop staat
gewoonlijke in de ontgrendelde stand
als hij uit de bagageruimte genomen
wordt. Dit is te zien aan de afstand van
het vliegwiel tot de trekstang, die
overeenkomt met een opening van
ongeveer 5 mm (zie afbeelding) en aan
het rode merkteken op het vliegwiel
dat gericht is naar het groene
merkteken op de trekstang.
Let erop dat de trekstang uitsluitend
gemonteerd kan worden als hij in deze
toestand verkeert. Als het
vergrendelingsmechanisme van de
trekstang losgemaakt wordt vóór de
installatie, of op willekeurig welk ander
moment, en in de vergrendelde stand
staat, dan moet het worden voorbelast.
De vergrendelde stand kan
gecontroleerd worden aan de hand van
het samenvallen van het groene
merkteken van het vliegwiel met het
groene merkteken van de trekstang en
aan de stopstand van het vliegwiel
op de trekstang, namelijk zonder
opening (zie afbeelding).Het vergrendelingsmechanisme wordt
als volgt voorbelast: met de sleutel
in het slot en het slot open, het vliegwiel
naar buiten trekken in de richting van
de pijl en, om voor te belasten, draaien
in de richting van pijl b tot de aanslag.
De ontgrendelingshendel is
ingeschakeld en het
vergrendelingsmechanisme blijft in de
voorbelaste stand ook als het vliegwiel
wordt losgemaakt. De trekstang moet
in de zittingbuis geplaatst worden
met de koppelingspen voor de
installatie. Plaatsen van onderaf en naar
boven duwen. Het mechanisme wordt
dan automatisch vergrendeld. Houd uw
handen uit de buurt van het vliegwiel,
want dit draait tijdens de
vergrendelingsprocedure.
2. De trekstang moet in de zittingbuis
geplaatst worden met de
koppelingspen voor de installatie.
Plaatsen van onderaf en naar boven
duwen. Het mechanisme wordt dan
automatisch vergrendeld. Houd uw
handen uit de buurt van het vliegwiel,
want dit draait tijdens de
vergrendelingsprocedure.
3. Vergrendel het slot en verwijder altijd
de sleutel. De sleutel kan niet verwijderd
worden als het slot niet vergrendeld is.
Breng de beschermdop aan op het
slot.
175 - Vergrendelde stand, tijdens het rijdenF1A0381
176 - Ontgrendelde stand, verwijderdF1A0382
201
Page 206 of 379

De trekstang
verwijderen
1. Verwijder de beschermdop van het
slot en duw deze op de greep van
de sleutel. Open het slot met de sleutel.
2. Houd de trekstang stevig vast,
verwijder het vliegwiel in de richting van
de pijl en draai het in de richting van
pijl b tot de aanslag, om het te
verwijderen tot de uitgetrokken stand.
Verwijder vervolgens de trekstang uit de
zittingbuis. Nu kan het vliegwiel
losgemaakt worden; het stopt vanzelf in
de losgemaakte stand.
3. Leg de trekstang op zodanige wijze
in de bagageruimte dat hij niet vuil of
beschadigd kan raken door andere
voorwerpen die vervoerd worden.
4. Plaats de geschikte plug in de
montagepijp.
BELANGRIJK
37) De verwijderbare trekstang met
kogelkop mag uitsluitend
gerepareerd en uit elkaar gehaald
worden door de fabrikant.38) Het bijgeleverde plaatje moet op
een goed zichtbaar punt op het
voertuig worden aangebracht,
dichtbij de montagepijp of in de
bagageruimte.
39) Verwijder regelmatig alle vuil van
de trekstang met kogelkop en van
de montagepijp om een goede
werking van het systeem te
garanderen. De mechanische
onderdelen moeten op de
aangegeven intervallen een
onderhoudsbeurt krijgen. Het slot
mag uitsluitend behandeld
worden met grafiet.
40) Smeer de koppelingen, glij-
oppervlakken en de kogels
regelmatig met vet zonder hars of
olie. Smering is tevens een extra
bescherming tegen corrosie.
41) Verwijder, wanneer het voertuig
wordt gereinigd met een
stoomreiniger, de trekstang met
kogelkop en zet de speciale plug
op zijn plaats. De plug van de
kogelkop mag nooit behandeld
worden met waterstralen onder
hoge druk.
42) Bij de verwijderbare trekstang
met kogelkop worden twee
sleutels geleverd. Noteer het
sleutelnummer op het slot voor
eventuele nabestelling en bewaar
het.
WINTERBANDEN
Het Fiat Servicenetwerk kan u
adviseren over de meest geschikte
band voor elk gebruik.
De specifieke eigenschappen van
winterbanden verminderen drastisch
wanneer de profieldiepte minder is dan
4 mm. Vervang in dergelijke gevallen
de wielen.
Door hun specifieke eigenschappen zijn
de prestaties van winterbanden onder
normale omstandigheden of wanneer
lang op de snelweg wordt gereden,
lager dan die van de standaard
gemonteerde banden. Beperk het
gebruik van winterbanden daarom
uitsluitend tot de omstandigheden
waarvoor ze zijn goedgekeurd.
BELANGRIJK Als winterbanden worden
gebruikt met een maximum toegestane
snelheid die lager is dan de topsnelheid
van het voertuig (plus een marge van
5%), dan moet in de passagiersruimte
een duidelijk zichtbaar
waarschuwingsplaatje worden
geplaatst met de maximum toegestane
snelheid wanneer met winterbanden
wordt gereden (conform de
EU-richtlijnen).
202
STARTEN EN RIJDEN
Page 207 of 379

Monteer op de vier wielen dezelfde
banden (zelfde merk en profieldiepte)
voor meer veiligheid tijdens het rijden en
het remmen en voor een betere
bestuurbaarheid.
Denk eraan dat de draairichting van de
banden niet omgedraaid mag worden.
144)
BELANGRIJK
144) De maximumsnelheid voor
winterbanden met de indicatie
“Q” is 160 km/h; 190 km/h voor
winterbanden met de indicatie “T”
en 210 km/h voor winterbanden
met de indicatie"H". U dient zich
echter altijd aan de
snelheidsbeperkingen in de
wegenverkeerswetgeving te
houden.
SNEEUWKETTINGEN
Het gebruik van sneeuwkettingen moet
aan de plaatselijke voorschriften in elk
land voldoen.
Sneeuwkettingen mogen alleen op de
banden van de voorwielen
(aandrijfwielen) gemonteerd worden.
Het gebruik van sneeuwkettingen
uit het assortiment Lineaccessori Fiat
wordt aanbevolen. Controleer de
spanning van de sneeuwkettingen na
enkele tientallen meters rijden.
43)
BELANGRIJK Bedien het gaspedaal
uiterst voorzichtig als sneeuwkettingen
gemonteerd zijn; voorkom of beperk
het risico op doorslippen van de
aandrijfwielen die breuk van de ketting
en bijgevolg beschadiging van de
carrosserie of de mechanische
onderdelen kunnen veroorzaken.
BELANGRIJK Gebruik voor versies met
225/75 R16 banden, sneeuwkettingen
met een max. dikte van 16 mm.
Wanneer met sneeuwkettingen wordt
gereden, kan het handig zijn om het
ASR uit te schakelen: onder deze
omstandigheden levert het doorslippen
van de aandrijfwielen bij het wegrijden
immers meer trekkracht op.
BELANGRIJK
43) Beperk de snelheid als
sneeuwkettingen gemonteerd
zijn; rijd niet harder dan 50 km/h.
Vermijd kuilen, trottoirbanden
en stoepen en rijd geen lange
stukken op sneeuwvrije wegen om
het voertuig en het wegdek niet
te beschadigen.
203
Page 208 of 379

LANGDURIGE
STILSTAND
Tref de volgende voorzorgsmaatregelen
als het voertuig langer dan een maand
niet gebruikt zal worden:
❒parkeer het voertuig in een
overdekte, droge en indien mogelijk
goed geventileerde ruimte;
❒schakel een versnelling in;
❒controleer of de handrem niet is
aangetrokken;
❒koppel de minpool van de accu los,
als de auto is uitgerust met een
"accu-cut-of"-functie (scheider), zie
voor de beschrijving van de
werkwijze de paragraaf
"Bedieningselementen" in
"Dashboard en
bedieningselementen";
❒maak de met lak gespoten delen
schoon en behandel ze met een
beschermende was;
❒reinig en bescherm de glanzende
metalen delen met speciale middelen
die in de handel verkrijgbaar zijn;
❒bestrooi de wisserrubbers van de
ruitenwissers en achterruitwisser met
talkpoeder en til ze van de ruit op;
❒zet de ruiten iets open;❒dek het voertuig af met een doek of
een geperforeerde kunststof hoes.
Gebruik geen dichte plastic hoezen,
omdat het op de carrosserie
aanwezige vocht dan niet kan
verdampen;
❒pomp de banden 0,5 bar boven de
voorgeschreven spanning op en
controleer de spanning met
regelmatige tussenpozen;
❒tap het koelsysteem van de motor
niet af.
BELANGRIJK Als de auto is uitgerust
met een alarmsysteem, moet dit met de
afstandsbediening worden
uitgeschakeld.
BELANGRIJK Wacht, nadat de
contactsleutel naar STOP is gedraaid
en het bestuurdersportier is gesloten,
minstens één minuut alvorens de
elektrische voeding naar de accu los te
koppelen. Wanneer de elektrische
voeding naar de accu weer wordt
aangesloten, controleren of de
contactsleutel in de stand STOP staat
en of het bestuurdersportier gesloten is.
204
STARTEN EN RIJDEN