Page 137 of 304

POZOR
129)Nepřibližujte se k ústí nádrže s
otevřeným ohněm nebo se zapálenou
cigaretou: nebezpečí požáru. Nepřibližujte
se obličejem k hrdlu palivové nádrže,
abyste se nenadýchali škodlivých par.
130)Aby se palivo nepřelilo a nepřekročila
se maximální hladina, po naplnění nádrže
palivo již nedoplňujte.
131)Případným čerpáním paliva do
přenosné nádoby umístěné na plošině se
může způsobit požár. Nebezpečí popálenin.
Při plnění musíte nádobu s palivem umístit
na zem. Nepoužívejte kontaminované
palivo: palivem kontaminovaným vodou
nebo hlínou se může vážně poškodit
palivová soustava motoru. Je důležité
provádět řádnou údržbu palivového filtru
motoru a palivové nádrže.
132)Jestliže AdBlue v nádrži ohřívalo po
delší dobu na teplotu vyšší než 50 °C (např.
přímým slunečním osvitem), může se
AdBlue začít rozkládat a uvolňovat
čpavkové výpary. Čpavkové výpary mají
čpavý zápach, takže při vyšroubovávání
uzávěru nádrže přísady AdBlue dávejte
pozor, abyste se nenadechly těchto
čpavkových výparů, které z ní začnou
unikat. Nicméně v této koncentraci nejsou
čpavkové výpary škodlivé nebo
nebezpečné pro zdraví.133)S motorem v chodu neotevírejte
vysokotlakou palivovou soustavu.
Fungováním motoru se palivo natlakuje na
vysoký tlak. Vytrysknutí paliva
natlakovaného na vysoký tlak lze přivodit
vážný úraz nebo smrt.
POZOR
35)Používejte výhradně automobilovou
naftu vyhovující evropské specifikaci
EN590. Používáním jiných pohonných
hmot nebo palivových směsí se může
nenapravitelně poškodit motor a záruka na
vozidlo pozbýt platnosti. V případě
náhodného načerpání paliva jiného typu
nestartujte motor a vyprázdněte nádrž.
Nastartujete-li motor byť jen na velmi
krátkou dobu, je nezbytné vyprázdnit jak
nádrž, tak celý palivový okruh.
36)Pracovníci plnicí stanice metanu nejsou
oprávněni naplnit tlakové nádoby s
prošlou lhůtou přezkoušení. Zpětný ventil
brání zpětnému průtoku metanu do
plnicího hrdla.
37)Pokud je vozidlo přihlášeno jinde než v
Itálii, údaje o certifikaci, identifikaci a
postupech při kontrolách / revizích
tlakových nádob musí odpovídat
předpisům příslušného státu. V každém
případě upozorňujeme, že podle nařízení
EHK č. 110 je maximální životnost
tlakových nádrží stanovena na 20 let od
data výroby.
PŘÍSADA ADBLUE
(MOČOVINA) PRO
EMISE VZNĚTOVÝCH
MOTORŮ
Popis systému
Vozidlo je vybaveno systémem
vstřikování močoviny a katalyzátorem
se selektivní katalytickou redukcí pro
splnění emisních norem.
Tyto dva systémy umožňují splnit
požadavky na emise vznětových
motorů; zároveň jsou schopny
dosáhnout úspory paliva, zlepšení
jízdních vlastností, točivého momentu a
výkonu.
Pro zprávy a upozornění systému viz
kapitolu „Seznámení s přístrojovou
deskou“ oddíl „Kontrolky a hlášení“.
Poznámky
Při zastavení vozidla můžete slyšet
zřetelné kliknutí pocházející ze spodku
vozidla, způsobené systémem
vstřikování močoviny; je to zcela
normální.
Čerpadlo vstřikovacího systému
močoviny po vypnutí motoru pokračuje
v činnosti ještě krátkou dobu pro
vyčištění okruhu. To je zcela normální a
ze spodní části vozidla můžete slyšet
hluk.
135
Page 138 of 304

VÝBAVA S
METANOVOU
SOUSTAVOU
(Natural Power)
38) 39)
ÚVOD
Verze „Natural Power” modelu Fiat
Ducato má dva palivové systémy, jeden
primární na zemní plyn (metan) a druhý
nouzový benzínový.
TLAKOVÉ NÁDOBY NA
METAN
Vozidlo je vybaveno pěti tlakovými
láhvemi (celkový obsah asi 218 litrů),
které jsou umístěné pod podlahou
vozidla a chráněné dvěma speciálním
kryty. Tlakové láhve jsou nádrže
obsahující zemní plyn ve stlačeném
plynném stavu (jmenovitý tlak 200 bar
při 15 ). Zemní plyn, který je uložený v
tlakových láhvích, proudí do příslušného
potrubí až k místu, kde je umístěný
reduktor/regulátor tlaku, který přivádí
zemní plyn do 4 vstřikovačů (přibližně 6
bar).Podle postupu stanoveného
nařízením EHK č. 110 je nutno
tlakové nádrže zkontrolovat každé
čtyři roky od data přihlášení vozidla
nebo v souladu s předpisy platnými
v jednotlivých státech.
UPOZORNĚNÍ Pokud ucítíte pach
plynu, přepněte fungování z metanu na
benzín a bez prodlení nechejte
soustavu zkontrolovat u autorizovaného
servisu Fiat.
LOGIKY PŘEPÍNÁNÍ MEZI
PALIVY
Přepínání mezi dvěma palivy zajišťuje
zcela automaticky pouze řídicí jednotka
motoru.
Jakmile zbytkové množství metanu
klesne pod 1/5 objemu tlakových
nádob, začne blikat indikace nejnižší
hladiny a okraje dalších ukazatelů
hladiny, což znamená, že je nutno
metan doplnit obr. 138.
Při vyjetí metanu dojde k
automatickému přepnutí na benzín: na
displeji přístrojové desky přestanou
blikat ukazatelé hladiny a u ikony CNG
obr. 139 se rozsvítí indikátor
.Jestliže uživatel doplní nádrž zemního
plynu poté, co tlak tohoto plynu klesnul
na hodnotu indikující stav rezervy,
systém se na pět sekund přepne na
benzín, aby zachoval plnou účinnost
benzínové palivové soustavy.
Doporučujeme nikdy nevyprázdnit
úplně benzínovou nádrž. Pokud
by se tak stalo, mohla by se
vyskytnout dvě rizika:Jakmile zásoba ZEMNÍHO PLYNU
klesne pod rezervu, vozidlo pojede
na benzín do jeho úplného vyjetí;
138F1A0436
139F0N0403I
136
STARTOVÁNÍ MOTORU A JÍZDA S VOZIDLEM
Page 139 of 304

při předchozí jízdě byla vyčerpána
zásoba benzínu a během fungování na
ZEMNÍ PLYN klesne zásoba tohoto
paliva na mezní hodnotu tlaku: v tomto
případě systém přinutí komutaci na
benzín a vozidlo se vypne za pohybu.
POZNÁMKA Ujistěte se, že během
doplnění zemního plynu se klíč nachází
v poloze OFF. Jestliže se systém již
přepnul na benzín a uživatel doplní
zásobu zemního plynu s klíčkem na
ON, pojede vozidlo na benzín a na plyn
se přepne až po opětném nastartování
motoru.
OMEZENÍ OHLEDNĚ
POUŽÍVÁNÍ
Přepnutím z pohonu na metan na
pohon na benzín se okamžitě zapne
omezení maximální rychlostí na 90
km/h; proto se doporučuje dočerpat
zemní plyn ihned při prvním upozornění
na to, že množství plynného paliva
kleslo na rezervu; při druhém
upozornění (dvojí pípnutí) se při jízdě
vyvarujte takových „rizik“, jako je např.
předjíždění na dálnici vysokou rychlostí.Pohon na benzín slouží pouze pro
případ nouze. Aby zajištěna patřičná
dojezdová autonomie byť s ohledem na
omezený obsah palivové nádrže,
budou při pohonu na benzín omezeny
výkony z hlediska rychlosti, rozjezdu
větší rychlostí a akcelerace (zejména ve
stoupání).
Proto před náročnými jízdami a/nebo
trasami z hlediska zatížení či stavu
silnice doporučujeme načerpat plnou
nádrž plynného paliva.
POZOR
38)Fiat Ducato Natural Power je vybaven
vysokotlakou soustavou zemního plynu
vyprojektovanou pro provoz při jmenovité
hodnotě tlaku 200 bar. Je nebezpečné
zatěžovat systém vyššími tlaky. Při poruše
systému dodávky zemního plynu vyhledejte
pouze autorizovaný servis Fiat. Uspořádání
ani součásti soustavy zemního plynu se
nesmějí upravovat - byly vyprojektovány
výlučně pro Fiat Ducato Natural Power.
Použití jiných komponentů či materiálů
může způsobit funkční poruchy a snížit
bezpečnost vozu.39)V případě vypalování laku „v peci“ je
nutné v autorizovaném servisu Fiat tlakové
nádrže demontovat z vozidla a následně
je namontovat zpět. I přes četné pojistky,
jimiž je systém dodávky zemního plynu
vybaven, doporučujeme zavřít ruční ventily
tlakových nádrží před každým odstavením
vozidla na delší dobu, před přepravou
na jiném dopravním prostředku nebo před
manipulací v mimořádné situaci z důvodu
poruch nebo nehod.
137
Page 140 of 304

RADY OHLEDNĚ
NÁKLADU
Používáte verzi Fiat Ducato, jež byla
vyprojektována a homologována pro
určité nejvyšší hmotnosti (viz tabulky
"Hmotnosti" v kapitole “Technické
údaje”): pohotovostní hmotnost,
užitečná hmotnost, celková hmotnost,
celková hmotnost na přední nápravě,
celková hmotnost na zadní nápravě,
přípojná hmotnost.
UPOZORNĚNÍ Maximální povolené
zatížení úchytů v podlaze: 500 kg.
Maximální povolené zatížení na bočnici:
150 kg.
UPOZORNĚNÍ U verzí s pravou a levou
sklopnou bočnicí se doporučuje
přestavit uvolňovací páku do polohy
zavření ještě před vyklopením bočnic.
134) 135) 136)
40)
Ke zvýšení bezpečnosti a komfortu jízdy
i životnosti vozidla přispívají také
následující jednoduché zásady
a opatření:
Náklad rozložte po ložné ploše
rovnoměrně; pokud je náklad nutné
soustředit na jedno místo, umístěte jej
mezi nápravy;
nezapomínejte rovněž, že hmotnost
nákladu ovlivňuje dynamické vlastnosti
vozidla: prodlužuje se brzdná dráha
zejména při jízdě vysokou rychlostí.
POZOR
134)Jízdou po nerovném povrchu a
prudkým brzděním se by se náklad mohl
nečekané přesunout a tím by mohly
vzniknout situace nebezpečné pro řidiče i
spolucestující: proto je před jízdou nutno
náklad řádně upevnit pomocí příslušných
úchytů. K upevnění nákladu použijte vázací
prostředky s pevností odpovídající
hmotnosti upevňovaného materiálu.
135)I u vozidla stojícího v prudkém svahu
nebo při silném bočním náklonu může
při otevření zadních dveří nebo bočních
posuvných dveří dojít k vypadnutí
neukotveného nákladu ven z vozu.
136)Jestliže přepravujete rezervní kanystr s
palivem, dodržujte platné předpisy a
používejte pouze kanystr schváleného typu,
který upevněte do upevňovacích ok
nákladu. Nicméně i tak se při případné
nehodě zvyšuje nebezpečí požáru.
POZOR
40)Výše uvedené mezní hodnoty je nutno
řádně dodržovat: V ŽÁDNÉM PŘÍPADĚ
NESMĚJÍ BÝT PŘEKROČENY. Zejména se
ujistěte, za nejsou překročeno maximální
povolené zatížení přední ani zadní nápravy
rozložením nákladu ve vozidle (zejména v
případě vozidla se speciální výbavou).
138
STARTOVÁNÍ MOTORU A JÍZDA S VOZIDLEM
Page 141 of 304

TAŽENÍ PŘÍVĚSŮ
UPOZORNĚNÍ
Pro případ tažení obytného nebo
nákladního přípojného vozidla musí být
vozidlo vybaveno schváleným tažným
zařízením a odpovídajícím elektrickým
rozvodem. Tažné zařízení musejí
instalovat kvalifikovaní pracovníci, kteří
vystaví řádnou dokumentaci opravňující
k silničnímu provozu.
Případná speciální zpětná a/nebo
přídavná zrcátka je třeba připevnit v
souladu s Pravidly silničního provozu.
Nezapomínejte, že se tažením
přípojného vozidla snižuje v závislosti na
celkové hmotnosti maximální
stoupavost vozidla, prodlužuje se
brzdná dráha a doba potřebná pro
předjíždění.
Při jízdě v klesání namísto trvalého
brzdění raději zařaďte nižší rychlostní
stupeň.
Hmotnost, kterou přípojné vozidlo
působí na tažné zařízení, úměrně
snižuje nosnost vozidla. Aby bylo
zajištěno, že nebude překročena
maximální přípustná hmotnost
přípojného vozidla (uvedená v
technickém průkazu), je nutno brát v
úvahu hmotnost plně naloženého
přívěsu včetně příslušenství a osobních
zavazadel.Při jízdě s přípojných vozidlem
dodržujte omezení rychlosti platné v
daném státě. V každém případě nesmí
být maximální rychlost vyšší než 100
km/h.
Doporučujeme osadit oj přípojného
vozidla vhodným stabilizátorem.
Po namontování tažného zařízení na
vozidla s parkovacími senzory, by
se mohly projevit poruchy fungování,
protože některé díly (tažná oj, tažná
koule) by se mohly nacházet v oblasti
snímání senzorů. V takovém případě je
třeba řádně nastavit rozsah snímání
senzorů nebo parkovací asistenci
vypnout.
U vozidel vybavených převodovkou
„Comfort-matic“ se ujistěte, že je
zařazen neutrál (N) (vozidlem lze
pohybovat tlačením), a postupujte jako
při tažení normálního vozidla s
mechanickou převodovkou. Pokud by
nebylo možné zařadit neutrál, vozidlo
se nesmí táhnout: obraťte se na
autorizovaný servis Fiat.
137) 138)
INSTALACE TAŽNÉHO
ZAŘÍZENÍ
Montáž tažného zařízení ke karosérii
musejí provádět odborní technici podle
pokynů výrobce tohoto zařízení.
Tažné zařízení musí být v souladu se
stávajícími předpisy v platném znění s
odvoláním na směrnici 94/20/EHS v
platném znění.
Pro každou verzi vozidla je nutno
používat tažné zařízení vhodné pro
hmotnost přípojného vozidla, na které
se bude rovněž montovat.
Jako elektrický přípoj je nutno použít
unifikovaný konektor, který se obvykle
umístí na držák téměř vždy upevněný k
vlastnímu tažnému zařízení; do vozidla
je nutno nainstalovat samostatnou
skříňku pro ovládání vnějších světel
přípojného vozidla. Elektrické přípoje
musejí být provedeny konektory se
7 nebo 13 póly napájenými 12 VDC
(normy CUNA/UNI a ISO/DIN) v souladu
s případnými pokyny výrobce vozidla
a/nebo tažného zařízení.
Případnou elektrickou brzdu či jiné
zařízení (např. elektrický naviják, atd.) je
nutno napájet přímo z baterie kabelem
o průřezu min. 2,5 mm
2.
UPOZORNĚNÍ Elektrická brzda či
případný naviják se smí používat pouze
s nastartovaným motorem.
139
Page 142 of 304

Kromě výše uvedených přípojek je
povoleno připojit k elektrickému
rozvodu vozidla pouze napájecí kapel
případné elektrické brzdy a kabel
případného vnitřního svítidla přípojného
vozidla s výkonem max. 15 W. Pro
přípoje použijte skříňku osazenou
kabelem od baterie o průřezu min. 2,5
mm
2.
UPOZORNĚNÍ Hák tažného zařízení
vymezuje délku vozidla. Na verze s
"dlouhým rozvorem" se proto smí
nainstalovat výhradně tažné zařízení s
vytahovatelným hákem, aby se
nepřekročila mezní hodnota celkové
délky vozidla stanovená na šest metrů.
Při jízdě bez přípojného vozidla je pak
nutno vyjmout hák z uložení, které také
nesmí přečnívat přes originální délku
vozidla.
UPOZORNĚNÍ Pokud chcete jezdit s
tažným zařízením bez přípojného
vozidla, nechejte si u autorizovaného
servisu Fiat systém aktualizovat,
protože by parkovací senzory mohly
detekovat tažné zařízení jako překážku.
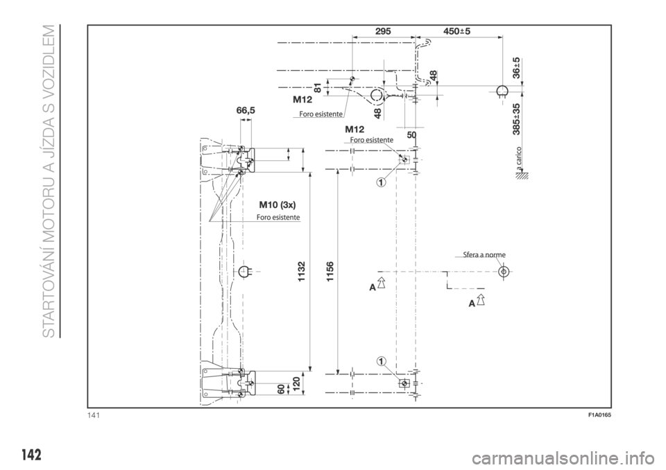
Montážní schéma u skříňové verze
obr. 140
Tažný hák je nutno upevnit ve
vyznačených místech Ø šesti šrouby
M10x1,25 a čtyřmi šrouby M12.Desky v rámu musejí mít minimální
tloušťku 5 mm. MAX. ZATÍŽENÍ NA
KOULI: 100/120 kg podle nosnosti (viz
tabulku “Hmotnosti” v kapitole
“Technické údaje”).
139)
Při montáži tažného zařízení je nutno
nárazník naříznout podle pokynů
dodaných s montážní sadou.
Montážní schéma - verze Autocarro
a Cabinato obr. 141
Tažné zařízení pro verze Autocarro a
Cabinato je zobrazeno na .
Konstrukci Ø je nutno upevnit ve
vyznačených bodech šesti šrouby
M10x1,25 a čtyřmi šrouby M12.
MAX. ZATÍŽENÍ NA KOULI: 100/120 kg
podle nosnosti (viz tabulku “Hmotnosti”
v kapitole “Technické údaje”).
POZOR
137)Soustava ABS, kterou je vozidlo
případně vybaveno, nepůsobí na brzdovou
soustavu přípojného vozidla. Proto je
třeba vyšší opatrnost na kluzném povrchu.
138)Je zakázáno jakkoli upravovat
brzdovou soustavu vozidla. Brzdová
soustava přípojného vozidla musí být zcela
nezávislá na hydraulickém systému vozidla.
139)Po ukončení montáže je nutno otvory
šroubů utěsnit, aby jimi případně nevnikaly
výfukové plyny.
140
STARTOVÁNÍ MOTORU A JÍZDA S VOZIDLEM
Page 143 of 304
Page 144 of 304
141F1A0165
142
STARTOVÁNÍ MOTORU A JÍZDA S VOZIDLEM