Page 193 of 367
Page 194 of 367

INSTRUCCIONES PARA
UTILIZAR LA BARRA DE
REMOLQUE DE CABEZA
ESFÉRICA MÓVIL
36) 37) 38) 39) 40) 41)
Antes de emprender un viaje, comprobar
que la barra de remolque de cabeza
esférica móvil esté bien bloqueada según
las siguientes condiciones:❒La marca verde de la palanca
coincide con la marca verde en la
barra de remolque.
❒La palanca se encuentra a final de
carrera en la barra de remolque
(sin ranura).
❒Cerradura bloqueada y llave extraída.
La palanca no puede extraerse.
❒Barra de cabeza esférica fijada
sólidamente al tubo de alojamiento.
Comprobar sacudiendo con la mano.Si después de comprobar los 4 requisitos
no se han cumplido, el procedimiento
de montaje debe repetirse.
Aunque solo uno de los requisitos no se
haya cumplido, el gancho de remolque
no debe utilizarse, de lo contrario podrían
producirse accidentes. Ponerse en
contacto con el fabricante de la junta.
La barra de remolque de cabeza esférica
puede montarse y desmontarse
manualmente sin necesidad de utilizar
herramientas.Si se utilizan herramientas el mecanismo
podría dañarse.
No desbloquear si hay un remolque
enganchado al vehículo o un portacargas
montado.
Si se circula sin remolque o sin
portacargas, la barra de remolque de
cabeza esférica debe retirarse y el tapón
de cierre debe introducirse siempre en
el tubo de alojamiento. Esto es
especialmente importante cuando se
reduce la visibilidad de la matrícula o del
sistema de iluminación.
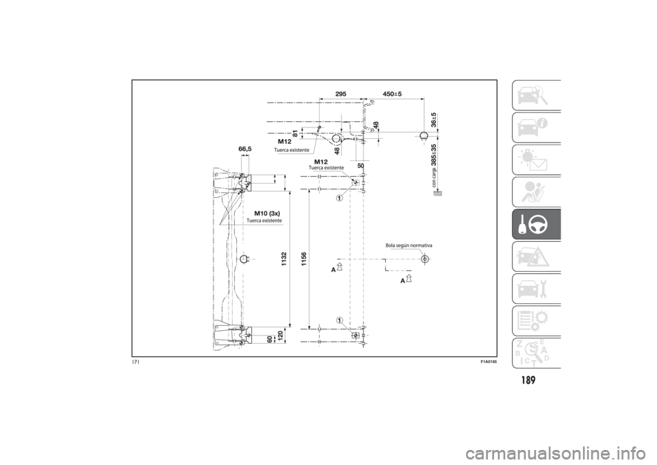
Barra de remolque de
cabeza esférica móvilfig.
172 - fig. 173 - fig. 174
1. Tubo de alojamiento - 2. Barra de
remolque de cabeza esférica - 3. Bolas
de bloqueo - 4. Palanca de desbloqueo -
5. Palanca - 6. Capuchón - 7. Llave - 8.
Marca roja (palanca) - 9. Marca verde
(palanca) - 10. Marca verde (barra de
remolque) - 11. Símbolo (desbloqueo de
mando) - 12. Tapón de cierre - 13. Bulón
de acoplamiento - 14. Falta de ranuras
entre2y5-15.Ranura de aprox. 5 mm
172
F1A0380
173 - Posición bloqueada, marcha
F1A0381
174 - Posición desbloqueada, extraída
F1A0382
190
PUESTA EN MARCHA Y CONDUCCIÓN
Page 195 of 367

Montaje de la barra de
remolque de cabeza
esférica
1. Quitar el tapón del tubo de soporte.
Cuando se extrae del maletero, la barra
de remolque de cabeza esférica
normalmente se encuentra en posición
desbloqueada. Esto se puede reconocer
porque la palanca mantiene una clara
distancia de la barra de remolque,
correspondiente a una ranura de 5 mm
aprox. (ver figura) y porque la marca
roja de la palanca está orientada hacia la
marca verde de la barra de remolque.
Tener en cuenta que la barra de remolque
puede montarse únicamente en estas
condiciones. Si el mecanismo de bloqueo
de la barra de remolque se desactiva
antes del montaje o en cualquier otro
momento y, además, está en posición
bloqueada, este mecanismo debe
precargarse. La posición bloqueada
puede distinguirse porque la marca verde
de la palanca coincide con la marca
verde de la barra de remolque y porque
la palanca está en posición de final de
carrera en la barra de remolque, es decir,
sin ranura (ver figura).El mecanismo de bloqueo se precarga de
la siguiente manera: con la llave
introducida y la cerradura abierta, extraer
la palanca en la dirección de la flecha y,
para realizar la precarga, girar en la
dirección de la flecha B hasta que se
detenga. La palanca de desenganche se
acopla y el mecanismo de bloqueo
permanece en posición de precarga
aunque se haya soltado la palanca. Para
montar la barra de remolque, ésta debe
introducirse en el tubo de alojamiento
con el bulón de acoplamiento. Introducir
desde abajo y empujar desde arriba. El
mecanismo se bloquea
automáticamente. Mantener las manos
alejadas de la palanca porque realiza
un movimiento giratorio durante el
procedimiento de bloqueo.2. Para montar la barra de remolque,
ésta debe introducirse en el tubo de
alojamiento con el bulón de
acoplamiento. Introducir desde abajo y
empujar desde arriba. El mecanismo
se bloquea automáticamente. Mantener
las manos alejadas de la palanca porque
realiza un movimiento giratorio durante
el procedimiento de bloqueo.
3. Cerrar la cerradura y extraer la llave. La
llave no puede extraerse cuando la
cerradura está desbloqueada. Aplicar el
capuchón de protección en la cerradura.
191
Page 196 of 367

37) La etiqueta de serie se aplica en
un punto bien visible del vehículo,
cerca del tubo de soporte o en el
interior del maletero.
38) Para garantizar un
funcionamiento correcto del
sistema es necesario eliminar
regularmente todos los restos de
suciedad de la barra de cabeza
esférica y del tubo de soporte. El
mantenimiento de los
componentes mecánicos debe
realizarse en los intervalos
indicados. La cerradura debe
tratarse sólo con grafito.
39) Lubricar periódicamente con
grasa sin resina o aceite las
articulaciones, las superficies de
deslizamiento y las bolas. La
lubricación también sirve como
protección anticorrosión.
40) En caso de que el vehículo se
limpie con chorro de vapor, antes
se deberá desmontar la barra
de cabeza esférica e introducir el
tapón correspondiente. La barra
de cabeza esférica nunca debe
tratarse con chorro de vapor.
41) Junto con la barra de remolque
de bola móvil se suministran 2
llaves. Anotar el número de la
llave indicado en el bombín para
posibles pedidos futuros y
conservarlo.
192
PUESTA EN MARCHA Y CONDUCCIÓN
ADVERTENCIA
36) Sólo el fabricante puede reparar
y desmontar la barra de cabeza
esférica móvil.
Desmontaje de la barra
de remolque
1. Sacar el capuchón de protección de la
cerradura y presionarlo en la empuñadura
de la llave. Abrir la cerradura con la
llave.
2. Sujetar con fuerza la barra de
remolque, extraer la palanca en la
dirección de la flecha A y girar en la
dirección de la flecha B hasta que se
detenga para sacar hasta la posición de
extracción. A continuación, retirar la barra
de remolque del tubo de alojamiento. La
palanca puede soltarse y se detendrá
en una posición de desbloqueo.
3. Colocar la barra de remolque en el
maletero para evitar que se ensucie o se
dañe por culpa de otros objetos
transportados.
4. Introducir el tapón correspondiente en
el tubo de soporte.
Page 197 of 367

NEUMÁTICOS PARA
LA NIEVELa Red de Asistencia Fiat está a
disposición de los clientes para
recomendarles el tipo de neumático
adecuado para cada destino de uso.
Las características invernales de estos
neumáticos se reducen
considerablemente cuando la
profundidad de la banda de rodadura es
inferior a los 4 mm. En este caso, es
necesario sustituirlos.
Las características específicas de los
neumáticos para la nieve hacen que, en
condiciones climáticas normales o en
caso de recorridos largos en autopistas,
sus prestaciones sean inferiores respecto
a las de los neumáticos normales. Por
lo tanto, es necesario limitar su uso a las
prestaciones para las cuales han sido
homologados.
ADVERTENCIA Utilizando neumáticos
para la nieve con un índice de velocidad
máxima inferior al que puede alcanzar
el vehículo (aumentado en un 5%),
colocar bien visible dentro del habitáculo
un indicador de precaución que señale
la velocidad máxima permitida para
los neumáticos invernales (como lo prevé
la Directiva CE).Montar neumáticos iguales en las cuatro
ruedas (de la misma marca y perfil) para
garantizar una mayor seguridad durante
la marcha, en los frenados y una buena
maniobrabilidad.
Se recuerda que no es conveniente
invertir el sentido de rotación de
los neumáticos.
135)
ADVERTENCIA
135) La velocidad máxima del
neumático para nieve con
indicación “Q” no debe superar
los 160 km/h, con indicación “T”
no debe superar los 190 km/h, con
indicación H no debe superar los
210 km/h, siempre respetando las
normas vigentes del Código de
circulación.
CADENAS PARA LA
NIEVEEl uso de cadenas para la nieve está
sujeto a las normas vigentes en cada
país.
Las cadenas para la nieve se deben
colocar sólo en los neumáticos de las
ruedas delanteras (ruedas motrices).
Se recomienda utilizar cadenas para la
nieve de la Lineaccessori Fiat.
Comprobar la tensión de las cadenas
para la nieve después de haber recorrido
unas decenas de metros.
42)
ADVERTENCIA Con las cadenas
montadas, es necesario pisar
suavemente el acelerador con el fin de
evitar o limitar al máximo el deslizamiento
de las ruedas motrices para no romper
las cadenas, lo que podría ocasionar
daños a la carroceríayalamecánica.
ADVERTENCIA Para las versiones que
utilizan neumáticos de tamaño 225/75
R16, utilizar cadenas para la nieve con un
grosor máximo de 16 mm.
193
Page 198 of 367

Durante la circulación sobre un firme
nevado y con las cadenas para la nieve
montadas, puede ser útil desactivar el
ASR: en estas condiciones, el hecho de
que las ruedas motrices patinen en
fase de aceleración permite obtener una
mayor tracción.
ADVERTENCIA
42) Con las cadenas montadas,
mantener una velocidad
moderada; no superar los 50
km/h. Evitar los baches, no subir
peldaños o aceras ni recorrer
largos trayectos en carreteras sin
nieve para no dañar el vehículo
ni la calzada.
INACTIVIDAD
PROLONGADA DEL
VEHÍCULOSi el vehículo va a estar parado durante
más de un mes, tener en cuenta las
siguientes precauciones:❒guardar el vehículo en un local
cubierto, seco y si es posible
ventilado;
❒engranar una marcha;
❒comprobar que el freno de mano no
esté accionado;
❒desconectar el borne negativo del
polo de la batería; si el vehículo
dispone de función de desconexión
de la batería (seccionador), para el
procedimiento de desconexión
consultar la descripción que figura en
el apartado “Mandos” del capítulo
“Conocimiento del vehículo”;
❒limpiar y proteger las partes pintadas
aplicando ceras protectoras;
❒limpiar y proteger las partes
metálicas brillantes con productos
específicos que se encuentran en el
mercado;
❒espolvorear talco en las escobillas de
goma del limpiaparabrisas y del
limpialuneta y dejarlas levantadas de
los cristales;❒abrir un poco las ventanillas;
❒tapar el vehículo con una lona o un
plástico perforado. No usar lonas
de plástico compacto ya que no
permiten la evaporación de la
humedad presente en la superficie
del vehículo;
❒inflar los neumáticos con una presión
de + 0,5 bar respecto a la indicada
normalmente y controlarla
periódicamente;
❒no vaciar el sistema de refrigeración
del motor.
ADVERTENCIA Si el vehículo dispone de
sistema de alarma, desactivarlo con el
mando a distancia.
ADVERTENCIA Antes de desconectar la
alimentación eléctrica de la batería,
esperar, al menos, un minuto desde el
momento en que se coloca la llave de
contacto en STOP y desde el cierre de la
puerta del lado del conductor. En la
siguiente conexión de la alimentación
eléctrica de la batería, asegurarse de que
la llave de contacto esté en posición
STOP y que la puerta del lado del
conductor esté cerrada.
194
PUESTA EN MARCHA Y CONDUCCIÓN
Page 199 of 367

EN CASO DE EMERGENCIA
¿Una goma perforada o una lámpara
apagada?
Puede ocurrir que cualquier problema
incomode nuestro viaje.
Las páginas dedicadas a las situaciones
de emergencia pueden ser una ayuda
para afrontar forma autónoma y tranquila
los momentos críticos.
En situaciones de emergencia,
recomendamos llamar al número gratuito
que se encuentra en el Libro de Garantía.
Además, también se puede llamar al
número gratuito 00 800 3428 0000 para
buscar la Red de Asistencia Fiat más
cercana.
ARRANQUE DEL MOTOR ...............196
SUSTITUCIÓN DE UNA RUEDA ......197
KIT DE REPARACIÓN RÁPIDA DE
LOS NEUMÁTICOS FIX&GO
AUTOMATIC ...................................202
SUSTITUCIÓN DE UNA LÁMPARA .206
SUSTITUCIÓN DE UNA LÁMPARA
EXTERIOR.......................................211
SUSTITUCIÓN DE LA LÁMPARA
INTERIOR .......................................216
SUSTITUCIÓN DE FUSIBLES..........217
RECARGA DE LA BATERÍA .............225
ELEVACIÓN DEL VEHÍCULO...........226
REMOLQUE DEL VEHÍCULO ..........226
195
Page 200 of 367

ARRANQUE DEL
MOTORSi el testigo
del cuadro de
instrumentos permanece encendido con
luz fija, acudir inmediatamente a la Red
de Asistencia Fiat.
ARRANQUE CON BATERÍA
AUXILIAR
Si la batería está descargada, se puede
poner en marcha el motor utilizando
otra batería, de capacidad igual o poco
superior a la batería descargada.
Se recomienda acudir a la Red de
Asistencia Fiat para el control/sustitución
de la batería.
136)
Para arrancar el motor, proceder de la
siguiente manera:❒levantar la tapa A fig. 175 para poder
alcanzar la conexión al polo positivo
de la batería;
❒conectar los bornes positivos (signo
+ cerca del borne) de las dos
baterías con un cable adecuado;
❒conectar con un segundo cable el
borne negativo (–) de la batería
auxiliar con el punto de masa tal y
como se muestra en fig. 176;
❒arrancar el motor;
❒cuando el motor esté arrancado,
desconectar los cables en orden
inverso al de conexión.Si tras unos intentos el motor no arranca,
no insistir y acudir a la Red de Asistencia
Fiat.ADVERTENCIA No conectar
directamente los bornes negativos de las
dos baterías: se podrían producir chispas
que podrían incendiar el gas detonante
que saldría de la batería. Si la batería
auxiliar está instalada en otro vehículo, es
necesario controlar que entre éste último
y el vehículo con la batería descargada
no haya partes metálicas en contacto
accidentalmente.
ARRANQUE CON
MANIOBRAS DE INERCIA
El vehículo no debe ponerse en marcha
empujándolo, remolcándolo o
aprovechando las pendientes. Con estas
maniobras podría entrar combustible
en el silenciador catalítico y dañarlo de
forma irreversible.
175
F1A0351
176
F1A0352
196
EN CASO DE EMERGENCIA