
S
BODY
INDEX ........................................................ 2
HOOD ........................................................
COMPONENTS ........................................ t
FRONT FENDER PANEL .............................. ;I
COMPONENTS ........................................ S- ::
FRONT DOOR ............................................. S- 8
COMPONENTS ........................................ S- 8
FRONT SIDE WINDOW REGULATOR AND
GLASS ..................................................... s- 10
COMPONENTS ........................................ s- 10
FRONT DOOR LOCK AND OPENER .............. S- 13
COMPONENTS ........................................ s- 13
REAR DOOR ............................................... s- 15
COMPONENTS ........................................ s- 15
REAR SIDE WINDOW REGULATOR AND
GLASS ..................................................... s- 17
COMPONENTS ........................................ s- 17
REAR DOOR LOCK AND OPENER ...........
.-. ...
S- 19
COMPONENTS ........................................ s- 19
REAR HATCH ............................................. s- 20
COMPONENTS ........................................ s- 20
REAR HATCH LOCK AND OPENER.. .............
S- 22
COMPONENTS ........................................ s- 22
POWER DOOR LOCK SYSTEM.. ................... S- 23
STRUCTURAL VIEW .................................. S- 23
TROUBLESHOOTING GUIDE ...................... S- 24
DOOR LOCK SWITCH ............................... S- 28
DOOR LOCK CONTROL ............................ S- 26
DOOR LOCK TIMER AND RELAY ............... S- 26
POWER WINDOW SYSTEM .......................... S- 27
STRUCTURAL VIEW .................................. S- 27
TROUBLESHOOTING GUIDE.. .................... S- 28
MAIN POWER WINDOW SWITCH.. .............. S- 31
POWER WINDOW SUB-SWITCH.. ................ S- 32
POWER WINDOW MOTOR ......................... S- 32
TRUNK LID .................................................
s- 33
COMPONENTS ........................................ s- 33
TRUNK LID LOCK AND OPENER.. ................ S- 35
COMPONENTS ........................................ s- 35
FUEL FILLER LID AND OPENER ................... S- 37
COMPONENTS ........................................ s- 37
FRONT BUMPER ......................................... s- 39
COMPONENTS ........................................ s- 39
REAR BUMPER ........................................... s- 40
COMPONENTS ........................................ s- 40
REAR SPOILER ........................................... s- 41
COMPONENTS ........................................ s- 41
MOLDING, PROTECTOR, GARNISH .............. S- 42
UPPER WINDSHIELD MOLDING,
A-PILLAR GARNISH ................................ S- 42
REAR WINDOW MOLDING (PROTEGE) ........ S- 43
REAR WINDOW MOLDING (HATCHBACK) ... S- 44
ROOF MOLDING ...................................... S- 46
BELTLINE MOLDING ................................ S- 48
SIDE PROTECTOR.. .................................. S- 49
RADIATOR GRILLE, LOWER GRILLE
MOLDING ................................................. s- 51
COMPONENTS ........................................ S- 51
REAR FINISHER.. ........................................
S- 52
COMPONENTS ........................................ S- 52
COWL GRILLE ............................................ s- 53
COMPONENTS ........................................ s- 53
EXTRACTOR CHAMBER ..............................
COMPONENTS ........................................ g-
- ;; OUTSIDE MIRROR ....................................... s- 54
TROUBLESHOOTING GUIDE.. .................... S- 54
POWER OUTSIDE MIRROR SWITCH ............ S- 55
POWER OUTSIDE MIRROR.. ...................... S- 56
COMPONENTS ........................................ s- 66
WINDSHIELD .............................................. S- 58
PREPARATION ......................................... S- 58
COMPONENTS ........................................ S- 58
QUARTER WINDOW GLASS ......................... S- 62
COMPONENTS .................. ..T ................... S- 82
REAR WINDOW GLASS ............................... S- 63
PREPARATION ......................................... S- 63
COMPONENTS ........................................ S- 63
WINDSHIELD WIPER AND WASHER ............. S- 87
TROUBLESHOOTING GUIDE.. .................... S- 67
WIPER MOTOR ........................................ s- 70
WASHER MOTOR ..................................... s- 71
WINDSHIELD WIPER AND WASHER
SWITCH ................................................ s- 71
COMPONENTS ........................................ S- 72
REAR WIPER AND WASHER ........................ S- 74
TROUBLESHOOTING GUIDE.. .................... S- 74
REAR WIPER MOTOR ............................... s- 77
REAR WASHER MOTOR ............................ s- 77
REAR WIPER AND WASHER SWITCH.. ........ S- 77
COMPONENTS ........................................ S- 78
SLIDING SUNROOF ..................................... S- 80
TROUBLESHOOTING GUIDE.. .................... S- 80
MOTOR ASSEMBLY .................................. S- 81
SUNROOF RELAY .................................... S- 82
SUNROOF SWITCH
(OVERHEAD CONSOLE) .......................... S- 82
COMPONENTS ........................................ S- 83
HEADLINER ................................................ S- 89
COMPONENTS ........................................ S- 89
DASHBOARD .............................................. s- 94
COMPONENTS ........................................ s- 94
TRIM .......................................................... s- 97
COMPONENTS ........................................ s- 97
FLOORMAT ................................................ s- 99
COMPONENTS ........................................ s- 99
SEAT BELT ................................................ S-l 00
COMPONENTS ........................................ S-l 00
SEAT BELT .............................................. S-l 02
BUCKLE SWITCH ..................................... s-102
PASSIVE SHOULDER BELT SYSTEM.. .......... S-103
STRUCTURAL VIEW .................................. s-103
TROUBLESHOOTING GUIDE.. .................... S-104
PASSIVE SHOULDER BELT MOTOR.. .......... S-106
DOOR CATCH SWITCH ............................. S-l 07
LIMIT SWITCH (FRONT/REAR)
WARNING SWITCH ....................................................... z-:X;
-
SPEED SENSOR ....................................... s-i 07
COMPONENTS ........................................ S-l 08
SEAT ......................................................... s-110
COMPONENTS ........................................ s-110
SEAT ASSEMBLY ..................................... S-l 13
UNDERBODY DIMENSIONS .............. ..: ......... S-116
PROJECTED DIMENSIONS (PROTEGE) ........ S-116
PROJECTED DIMENSIONS (HATCHBACK). .. S-117
STRAIGHT-LINE DIMENSIONS (PROTEGE). .. S-118
STRAIGHT-LINE DIMENSIONS
(HATCHBACK) ........................................ s-119
23UOSX.001

INDEX
NDEX
1. Hood
Components ............................... page S- 5
2. Front fender panel
Components ............................... page S- 7
3. Front door
Components ............................... page S- 8
4. Front side window regulator and glass
Components ............................... page S-l 0
5. Front door lock and opener
Components ............................... page S-l 3
6. Power door lock system
Structural view.. .......................... page S-23
Troubleshooting guide.. .............. page S-24
Door lock switch.. ....................... page S-26
Door lock control.. ...................... page S-26
Door lock timer and relay ........... page S-26
7. Power window system
Structural view ............................ page S-27
Troubleshooting guide.. .............. page S-28
Main power window switch.. ...... page S-31
Power window sub-switch .......... page S-32
Power window motor .................. page S-32
8. Fuel filler lid and opener
Components ............................... page S-37
9. Front bumper
Components ............................... page S-39
23UOSX-03
10. Molding, protector, garnish
Upper windshield molding,
A-pillar garnish.. ........................ page S-42
Roof molding .............................. page S-46
Beltline molding.. ........................ page S-48
Side protector.. ...........................
page S-49
11. Radiator grille, lower grille molding
Components ....................... . ....... page S-51
12. Cowl grille
Components ............................... page S-53
13. Outside mirror
Troubleshooting guide ................ page S-54
Power outside mirror switch.. ..... page S-55
Power outside mirror.. ................ page S-56
Components ............................... page S-56
14. Windshield
Components ...............................
page S-58
15. Windshield wiper and washer
Troubleshooting guide.. .............. page S-67
Wiper motor ................................ page S-70
Washer motor.. ........................... page S-71
Windshield wiper and
washer switch ........................... page S-71
Components ............................... page S-72
16. Sliding sunroof
Troubleshooting guide ................ page S-80
Motor assembly.. ........................ page S-81
Sunroof relay ..............................
page S-82 .--‘-
Sunroof switch ............................ page S-82
Components ............................... page S-83
s-2

INDEX
1. Rear door
10. Rear bumper
Components ...............................
page S-l 5 Components ............................... page S-40
q 2. Rear side window regulator and glass
11. Rear spoiler
Components ...............................
page S-i 7 Components ............................... page S-41
3. Rear door lock and opener 12. Molding, protector, garnish
Components ...............................
page S-l 9 Rear window molding
4. Rear hatch (PROTEGE) ............................... page S-43
Components ............................... page S-20 Rear window molding
5. Rear hatch lock and opener (Hatchback) .............................. page S-44
Components ...............................
page S-22 Side protector ............................. page S-49
6. Power door lock system 13. Rear finisher
Structural view ............................
page S-23 Components ............................... page S-52
Troubleshooting guide.. .............. page S-24 14. Extractor chamber
Door lock switch.. .......................
page S-26 Components ................................ page S-53
Door lock control.. ...................... page S-26 15. Quarter window glass
Door lock timer and relay ...........
page S-26 Components ............................... page S-62
7. Power window system
16. Rear window glass
Structural view ............................
page S-27 Components ............................... page S-63
Troubleshooting guide.. .............. page S-28 17. Rear wiper and washer
Main power window switch.. ...... page S-31 Troubleshooting
guide.. .............. page S-74
Power window sub-switch ..........
page S-32 Rear wiper motor.. ...................... page S-77
Power window motor.. ................
page S-32 Rear washer motor.. ................... page S-77
8. Trunk lid Rear wiper and washer switch..
. page S-77
Components ...............................
page S-33 Components
............................... page S-78
9. Trunk lid lock and opener
Components ...............................
page
S-35
s-3

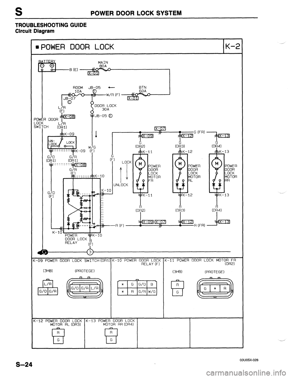
POWER DOOR LOCK SYSTEM
POWER DOOR LOCK SYSTEM
STRUCTURAL VIEW
121 rnsx-on
1, Door lock timer and relay
Inspection ................................... page S-26
2. Door lock switch (In door lock assembly)
Inspection ................................... page S-26
Removal / Installation
Hatchback ................................ page S-13
PROTEGC .................................
page S-14 - -- 3. Front door lock control
inspection ................................... page S-26
Removal / Installation
Hatchback ................................ page S-13
PROTEGE ................................. page S-14
4. Rear door lock control
Inspection ...................................
page S-26
Removal / installation ..................
page S-l 9
S-23

POWER DOOR LOCK SYSTEM
TROUBLESHOOTING GUIDE
Circuit Diagram
l POWER DOOR LOCK K-2
MAIN
c-09 POWER DOOR LOCK SWITCH(OR1) K--IO POWER DOOR LOCK K-II POWER DOOR LOCK MOT(X?FP
RELAY (F)
(3HB) (PROTEGE)
(3HB) (PROTEGE)
C-12 POWER DOOR LOCK K-13 POWER OOOR LOCK
MOTOR RL (OR31 MOTOR RR (OR41
S-24

POWER DOOR LOCK SYSTEM s
Power door lock system does not operate
(All doors)
I
Check ROOM 10A and DOOR OK NG VB: Battery voltage - Repair harness and replace fuses
1
Check for battery voltage at terminal-wire (L/R) of door
lock switch connector NG
Repair harness (Fuse box-Door lock switch)
1 OK
Check terminal voltage above connector with switch
each condition
Locked
Unlocked (G/R) wire
Va
ov (G/O) wire
ov
VB
1 OK
Check door lock switch (Refer to page S-26)
Disconnect door lock timer and relay connector:
check for battery voltage at terminal-wire (W/G) NO
- Repair harness (Fuse box-Door lock timer and relay) OK
Check terminal voltage above connector with switch
each condition
Lot ked
Unlocked
VB
ov (G/O) wire
ov
VB
1 OK
NO
Repair harness =
(Door lock switch-Door lock timer and relay)
1
Check for continuity of above connector terminal-wire
(B) to ground Repair harness (Door lock timer and relay-Ground)
I OK
Connect battery voltage to terminal-wire (G) and ground
terminal-wire (R) of door lock timer and relay; check that NGT Broken harness (Door lock timer and relay-Door lock
doors lock control) or defective door lock control
Reverse above connection; check that doors unlock (Refer to inspection; page S-26)
I OK F Check door lock timer and relay (Refer to page S-26)
23uosx-007 One door lock does not operate
t
Check door lock control (Refe Replace door lock control (Refer to pages S-13, 14, 19)
I OK __ Repair harness
- (Door lock timer and relay-Door lock control)
03uosx-030
s-25

POWER DOOR LOCK SYSTEM
03uosx-03:
DOOR LOCK SWITCH
Inspection
1 1 Disconnect the door lock switch connector.
2. Check for continuity between terminals of the switch with
an ohmmeter. -,
Locked 0 0
Unlocked 0 0
O--O: Indicates continuity
3. If not as specified, replace the door lock switch.
DOORLOCKCONTROL
Inspection
1. Disconnect the door lock control connector.
2. Check operation of the door lock control when battery volt-
age is applied to the terminals.
VB: Battery voltage
Connection
43 Ground Door lock control condition
b a Locked
a b Unlocked
3. If not as specified, replace the door lock control.
DOOR LOCK TIMER AND RELAY
Inspection
1. Check for continuity between terminals of the door lock timer
and relay with an ohmmeter.
Terminals 1 Continuity 1 Terminals 1 Continuity 1 Terminals 1 Continuity
a-b
I X 1 b-d 1 X 1 c-h 1 X
I a-c I 0 I b-e I X I d-e I 0 I
I
a-d I 0 1 b-f 1 X I d-f I 0 I
a-e 0 1 b-h ) 0 ) d-h ) X a-f I 0 1 c-d 1 0 I e-f I 0 I
a-h X c-e 0 1 e-h 1 X
b-c 1 X c-f
0 ( f-h ) X
I
O...Yes X...No
Note
l Set the tester to the x 1,OOOQ range.
2. Connect battery voltage to terminal (b) and ground termi-
nal (a). Then, short circuit between terminals (h) and (d) or
(h) and (c), and check that the relay clicks.
S-26

WINDSHIELD WIPER AND WASHER
Wiper does not operate in Lo or Hi position
(With wiper relay)’
I
Check WIPER 20A fuse
Repair harness and replace fuse
VB: Battery voltage
OK
Turn ignition switch ON
Check for battery voltage at terminal-wires (L) of wiper
relay connector NG
- Repair harness (Fuse box-Wiper relay)
I OK
Check for battery voltage at terminal-wires (W) and
(G/W) of above connector
I Replace wiper relay (Refer to Section T)
OK
Disconnect wiper switch connector;
check for battery voltage at terminal-wires (W) and
W’J) Repair harness (Wiper relay -Wiper switch)
I OK
Check for continuity of above connector terminal-wire
(B) to ground
I
Repair harness (Wiper switch-Ground) 1
1 OK
Check wiper switch (Refer to
I Replace combination switch (Refer to Section T)
1 OK
Check for battery voltage at terminal-wires (L/W) and (R)
of wiper relay connector with switch as shown NG
Replace wiper relay (Refer to Section T)
l Lo : (L/W) Ve l Hi : (R) Ve
OK
1 I
Disconnect wiper motor connector; check for battery
voltage at terminal-wires (L/W) and (R) with switch as
shown
l !-0 : (L/w) VB l Hi : (R) VB NG
= Repair harness (Wiper relay-Wiper motor)
OK
Check continuity between wiper motor body and
ground NG
= Repair ground circuit of wiper motor body
Check wiper motor (Refer to page S-70)
*: U.S. with/without cruise control, Canada with cruise control
23UOSX-017
Wiper does not operate in Lo or Hi position
(Without wiper relay)’
Check WIPER 20A fuse
OK
Repair harness and replace fuse .-
S-68 Cont’d