Page 201 of 383

W celu zainstalowania haka
holowniczego konieczne jest wykonanie
wycięcia w zderzaku, zgodnie z
wymiarami wskazanymi w zestawie
montażowym producenta.
Schemat montażu w
wersji Kabina ze
skrzynią i Kabina rys.
171
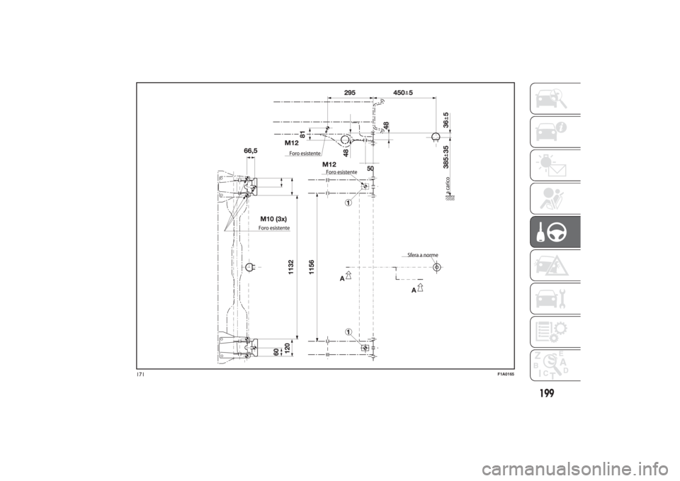
Dodatkowy hak holowniczy w
przypadku wersji Kabina ze skrzynią i
Kabina przedstawiono na rys. 171.
Hak powinien być mocowany we
wskazanych punktach 6 śrubami
M10x1,25 i 4 śrubami M12.
MAKSYMALNE OBCIĄŻENIE KULI
HAKA: 100/120 kg w zależności od
nośności (patrz tabela „Masy” w
rozdziale „Dane techniczne”).
134)
UWAGA
131) System ABS, w który może być
wyposażony samochód, nie
kontroluje układu hamulcowego
przyczepy. Dlatego należy
zachować szczególną ostrożność
na śliskiej nawierzchni drogi.132) Absolutnie nie należy
modyfikować układu
hamulcowego samochodu do
sterowania hamulcem przyczepy.
Układ hamulcowy przyczepy musi
być całkowicie niezależny od
układu hydraulicznego
samochodu.
133) Po zamontowaniu otwory
przelotowe śrub mocujących
muszą być uszczelnione,
aby zapobiec przedostawaniu się
ewentualnych spalin do wnętrza
samochodu.
134) Po zamontowaniu otwory
przelotowe śrub mocujących
muszą być uszczelnione,
aby zapobiec przedostawaniu się
ewentualnych spalin do wnętrza
samochodu.
197
10-3-2014 11:33 Pagina 197
Page 202 of 383
M12
170
F1A0164
198
URUCHOMIENIE I JAZDA
10-3-2014 11:33 Pagina 198
Page 203 of 383
171
F1A0165
199
10-3-2014 11:33 Pagina 199
Page 204 of 383

INSTRUKCJE
DOTYCZĄCE
UŻYTKOWANIA DRĄŻKA
HOLOWNICZEGO ZE
ZDEJMOWALNĄ GŁÓWKĄ
KULOWĄ
36) 37) 38) 39) 40) 41)
Przed rozpoczęciem podroży należy
sprawdzić poprawność zablokowania
drążka holowniczego ze zdejmowalną
główką kulową, pod kątem
następujących warunków:
❒Zielone oznakowanie korby zgadza
się z zielonym oznakowaniem na
drążku holowniczym.
❒Korba znajduje się w położeniu
końca skoku na drążku holowniczym
(bez szczeliny).
❒Zamek jest zablokowany i kluczyk
wyjęty. Korby nie można wyjąć.
❒Drążek z główką kulową jest trwale
umocowany w przewodzie z
gniazdem. Sprawdzenie należy
wykonać poprzez potrząśnięcie ręką.
Jeśli w wyniku sprawdzenia wszystkie 4
wymogi nie są spełnione, konieczne
jest powtórzenie procedury montażu.W razie, gdyby nie był spełniony tylko
jeden wymóg, hak holowniczy nie
powinien być użytkowany, w
przeciwnym razie istnieje ryzyko
wypadku. Należy skontaktować się z
producentem złącza.
Drążek holowniczy z główką kulową
można zamontować i wymontować
ręcznie, czyli bez użycia jakichkolwiek
narzędzi.
Nie należy nigdy stosować środków lub
narzędzi roboczych, ponieważ
mechanizm może wówczas ulec
uszkodzeniu.
Nie należy nigdy dokonywać
odblokowania, gdy do samochodu
umocowana jest przyczepa lub
zamontowany jest bagażnik.
W przypadku jazdy bez przyczepy lub
bez bagażnika drążek holowniczy z
główką kulową należy wymontować i
do przewodu z gniazdem włożyć
wówczas odpowiednią zaślepkę.
Powyższe zalecenie obowiązuje
zwłaszcza wtedy, gdy ograniczona jest
widzialność tablicy rejestracyjnej lub
oświetlenia samochodu.Drążek holowniczy ze
zdejmowalną główką
kulowąrys. 172 - rys. 173 - rys.
174
1. Przewód z gniazdem - 2. Drążek
holowniczy z główką kulową - 3. Kulki
zabezpieczające - 4. Dźwignia
odblokowywania - 5. Korba - 6.
Kapturek - 7. Kluczyk - 8. Czerwone
oznakowanie (korba) - 9. Zielone
oznakowanie (korba) - 10. Zielone
oznakowanie (drążek holowniczy) - 11.
Symbol (odblokowanie) - 12. Zaślepka -
13. Sworzeń - 14. Brak szczelin
pomiędzy2i5-15.Szczelina około 5
mm
172
F1A0380
200
URUCHOMIENIE I JAZDA
10-3-2014 11:33 Pagina 200
Page 205 of 383

Montaż drążka
holowniczego z główką
kulową
1. Wyjąć zaślepkę z przewodu
podtrzymującego.Po wyjęciu drążka z główką kulową z
bagażnika zwykle jest on w pozycji
odblokowanej. Jest tak, jeśli korba
pozostaje wyraźnie w pozycji oddalonej
od drążka holowniczego, czyli szczelina
ma około 5 mm (patrz rysunek) i
czerwone oznakowanie na korbie jest
zwrócone w stronę zielonego
oznakowania na drążku holowniczym.
Należy mieć na uwadze, że drążek
holowniczy można zamontować tylko w
takich warunkach. W razie, gdyby
mechanizm blokowania drążka
holowniczego musiał być odłączony
przed zamontowaniem, jak w każdej
innej sytuacji, i musiałby również być w
pozycji zablokowanej, tego typu
mechanizm wymaga wstępnego
obciążenia. Pozycję zablokowaną
można rozpoznać po tym, że zielone
oznakowanie korby pokrywa się z
zielonym oznakowaniem drążka
holowniczego i że korba jest w pozycji
końca skoku na drążku holowniczym,
czyli nie występuje szczelina (patrz
rysunek).Wstępne obciążenie mechanizmu
blokowania wykonuje się w następujący
sposób: gdy włożony jest kluczyk i
zamek jest otwarty, należy wysunąć
korbę zgodnie z kierunkiem strzałkiai-
by wykonać wstępne obciążenie -
obracać nią zgodnie z kierunkiem
strzałki b aż do zatrzymania. Dźwignia
odłączania zazębia się i mechanizm
blokowania pozostaje w pozycji
wstępnego obciążenia nawet wtedy,
gdy korba jest zwolniona. Aby
zamontować drążek holowniczy, należy
włożyć go do przewodu z gniazdem
poprzez sworzeń. Wkładać od dołu
i pchnąć do góry. Mechanizm zablokuje
się wówczas automatycznie. Ręce
należy trzymać z dala od korby,
ponieważ podczas procedury
blokowania wykonuje ona ruch
obrotowy.
2. Aby zamontować drążek holowniczy,
należy włożyć go do przewodu z
gniazdem poprzez sworzeń. Wkładać
od dołu i pchnąć do góry. Mechanizm
zablokuje się wówczas automatycznie.
Ręce należy trzymać z dala od korby,
ponieważ podczas procedury
blokowania wykonuje ona ruch
obrotowy.173 - Pozycja zablokowana, jazda
F1A0381
174 - Pozycja odblokowana, wyjęta
F1A0382
201
10-3-2014 11:33 Pagina 201
Page 206 of 383

3. Zamknąć zamek i wyjąć kluczyk.
Kluczyka nie można wyjąć, jeśli zamek
jest odblokowany. Nałożyć na zamek
kapturek ochronny.
Wymontowywanie
drążka holowniczego
1. Zdjąć kapturek zabezpieczający z
zamka i wcisnąć go w uchwyt w
kluczyku. Otworzyć zamek kluczykiem.
2. Chwycić mocno drążek holowniczy,
wysunąć korbę zgodnie z kierunkiem
strzałki a i obrócić nią zgodnie z
kierunkiem strzałki b aż do zatrzymania,
tak aby odłączyć aż do pozycji wyjęcia.
Następnie wyjąć drążek holowniczy z
przewodu z gniazdem. Korbę można
wtedy zwolnić; zatrzyma się ona
samoczynnie w pozycji odblokowanej.
3. Umieścić drążek holowniczy w
bagażniku, tak aby nie ulegał
zabrudzeniu lub uszkodzeniom przez
inne przewożone przedmioty.
4. Włożyć odpowiednią zaślepkę do
przewodu podtrzymującego.
OSTRZEŻENIE
36) Drążek ze zdejmowalną główką
kulową powinien być naprawiany
i demontowany wyłącznie przez
producenta.
37) Tabliczka z wyposażenia
powinna być umieszczana
w miejscu dobrze widocznym
samochodu, w pobliżu przewodu
podtrzymującego lub po
wewnętrznej stronie bagażnika.
38) Aby zapewnić właściwe działanie
systemu, należy regularnie
eliminować wszelkie zabrudzenia
z drążka z główką kulową oraz z
przewodu podtrzymującego.
Konserwacja komponentów
mechanicznych powinna być
przeprowadzana zgodnie z
zalecanymi interwałami. Zamek
należy konserwować wyłącznie
smarem grafitowym.
39) Okresowo należy smarować
smarem bez żywicy lub olejem
przeguby, powierzchnie przesuwu
i elementy kuliste. Smarowanie
służy również jako dodatkowe
zabezpieczenie antykorozyjne.40) W razie czyszczenia samochodu
parą wodną należy wcześniej
wymontować drążek z główką
kulową i założyć odpowiednią
zaślepkę. Drążek z główką kulową
nie powinien być nigdy
czyszczony parą wodną.
41) Wraz z drążkiem holowniczym ze
zdejmowalną kulą dostarczane są
2 kluczyki. Należy zanotować i
przechowywać w odpowiednim
miejscu numer kluczyka podany
na zapadce w razie ewentualnej
potrzeby zamówienia
dodatkowego kluczyka.
202
URUCHOMIENIE I JAZDA
10-3-2014 11:33 Pagina 202
Page 207 of 383

OPONY ZIMOWESieć serwisowa Fiata chętnie udzieli
porad w zakresie wyboru najbardziej
odpowiednich opon do zastosowania w
samochodzie Klienta.
Parametry opon zimowych ulegają
znacznemu pogorszeniu, gdy
głębokość bieżnika zmniejszy się
poniżej 4 mm. Należy je wówczas
wymienić na nowe.
Specyficzne parametry opon zimowych
powodują, że w normalnych warunkach
lub w przypadku długich tras po
autostradzie ich osiągi w rezultacie są
mniejsze w stosunku do opon z
normalnego wyposażenia. Dlatego
należy ograniczyć ich stosowanie do
osiągów przewidzianych w
homologacji.
OSTRZEŻENIE Używając opon
zimowych z indeksem prędkości
maksymalnej niższym od prędkości
osiąganej przez samochód
(powiększonej o 5%), należy umieścić
w miejscu dobrze widocznym we
wnętrzu nadwozia informację, która
podaje maksymalne prędkości
dopuszczalne dla opon zimowych
(zgodnie z przewidywaniami Dyrektywy
WE).Należy na wszystkich czterech kołach
montować jednakowe opony (marka
i profil), aby zagwarantować większe
bezpieczeństwo jazdy i hamowania
oraz dobre manewrowanie
samochodem.
Przypomina się, że korzystnie jest nie
zmieniać kierunku obracania się opon.
135)
UWAGA
135) Prędkość maksymalna dla opon
zimowych ze wskaźnikiem „Q” nie
może przekraczać 160 km/h; ze
wskaźnikiem „T” nie może
przekraczać 190 km/h; ze
wskaźnikiem H nie może
przekraczać 210 km/h; należy
jednak przestrzegać
obowiązujących przepisów
Kodeksu drogowego.
ŁAŃCUCHYPRZECIWPOŚLIZGOWEStosowanie łańcuchów
przeciwpoślizgowych zależy od
przepisów obowiązujących w danym
kraju.
Łańcuchy powinny być zakładane tylko
na opony kół przednich (koła
napędzane).
Zaleca się używać łańcuchów
przeciwpoślizgowych dostępnych w
Lineaccessori Fiata. Po przejechaniu
kilkudziesięciu metrów należy
sprawdzić napięcie łańcuchów.
42)
OSTRZEŻENIE Przy zamontowanych
łańcuchach przeciwpoślizgowych
należy bardzo delikatnie posługiwać się
pedałem przyspieszenia, celem
uniknięcia lub ograniczenia do
maksimum poślizgu kół napędzanych,
aby nie spowodować pęknięcia
łańcuchów, co może doprowadzić do
uszkodzenia nadwozia i mechanizmów.
OSTRZEŻENIE W przypadku wersji
stosujących opony o rozmiarze 225/75
R16 należy używać łańcuchów o
grubości maksymalnej wynoszącej 16
mm.
203
10-3-2014 11:33 Pagina 203
Page 208 of 383

Podróżując, z zamontowanymi
łańcuchami, po drodze pokrytej
śniegiem, wskazane jest wyłączyć ASR:
w tych warunkach poślizg kół
napędzanych w fazie ruszania
umożliwia uzyskanie większego
momentu napędowego.
OSTRZEŻENIE
42) Jadąc z zamontowanymi
łańcuchami przeciwpoślizgowymi
należy utrzymywać umiarkowaną
prędkość, nie przekraczać 50
km/h. Należy unikać dziur w
jezdni, nie najeżdżać na
krawężniki lub chodniki i nie
przejeżdżać zbyt długich
odcinków dróg nie pokrytych
śniegiem, aby nie uszkodzić
samochodu i nawierzchni drogi.
DŁUGA
NIEKATYWNOŚĆ
POJAZDUJeżeli samochód ma być nieaktywny
przez ponad miesiąc, należy
przestrzegać poniższych zaleceń:
❒umieścić samochód w
pomieszczeniu zamkniętym, suchym
i możliwie przewiewnym;
❒włączyć bieg;
❒sprawdzić, czy hamulec ręczny nie
jest zaciągnięty;
❒odłączyć zacisk od bieguna
ujemnego akumulatora; jeżeli
samochód dysponuje funkcją
odłączania akumulatora (wyłącznik
sekcyjny), odnośnie procedury
odłączenia, patrz opis w sekcji
„Elementy sterowania” w rozdziale
„Poznawanie samochodu”;
❒wyczyścić i zabezpieczyć woskiem
ochronnym elementy lakierowane;
❒wyczyścić i zabezpieczyć metalowe
elementy błyszczące specyficznymi
produktami dostępnymi na rynku;
❒posypać talkiem gumowe pióra
wycieraczek szyby przedniej i tylnej i
odchylić je od szyby;
❒uchylić lekko szyby;❒przykryć samochód pokrowcem z
materiału lub dziurkowanego
tworzywa sztucznego. Nie należy
stosować pokrowców ze spójnego
tworzywa sztucznego, które nie
pozwalają na odparowanie wilgoci
znajdującej się na powierzchni
samochodu;
❒napompować opony do ciśnienia o
+0,5 bara w stosunku do normalnie
wymaganego i okresowo je
sprawdzać;
❒nie opróżniać układu chłodzenia
silnika.
OSTRZEŻENIE Jeżeli samochód
wyposażony jest w system alarmowy,
należy wyłączyć alarm pilotem.
OSTRZEŻENIE Przed odłączeniem od
akumulatora zasilania elektrycznego
należy poczekać co najmniej minutę od
ustawienia kluczyka w wyłączniku
zapłonu w położeniu STOP i od
zamknięcia drzwi po stronie kierowcy.
Przy późniejszym podłączaniu zasilania
elektrycznego do akumulatora należy
upewnić się, że kluczyk w wyłączniku
zapłonu jest w położeniu STOP i że
drzwi po stronie kierowcy są zamknięte.
204
URUCHOMIENIE I JAZDA
10-3-2014 11:33 Pagina 204