Page 322 of 738
Downloaded from www.Manualslib.com manuals search engine 320CIRCUIT DIAGRAMS - Remote Controlled Mirror Circuit
REMOTE CONTROLLED MIRROR CIRCUIT
3B-
B-R
rMFI SiSTEM
20-I
DEDICATEDFUSE
r(2
101
:F>3-I;
11
III
I
I
I/II
I
III,//II/
I
/4
LH
t21-4-L
d/ \,"7
"8
Y-W Y-L G-:L ----- ----- _____
“r12(D-43)
‘g------0
I
(F> 28 (F) (F> (F:B-RY-W Y-L G-I
(E-32) ,&-,p&&-
B-R 2B,,Y-W Y-L G-I
,:1B 1:'
(E-33) :\2--
HEATER
(LH)
\RH
1"2
j‘9
Y-R G-RB
-------- --- ---- ---_ ___“132E____----___--_-___7
(F) (F> (F> (F) (F)B-RB Y-W Y-R G-R
$3 ,,5--,_4-,,g-,,7--(E-01)
B-RB Y-W Y-R G-R:2:15:1 1x18;;$;I\ ,\g;2B/\ /\ I\ /\ I\ (E-03)--
5I- UI1 HEATER
(RH)
AL
0
1I
4)
4)
cl=
2(D-41)
REMOTECONTROLLED MIRRORXl:VEHICLES WITH MIRROR HEATER:2:VEHICLES WITHOUT MIRROR HEATER
HR13M05AAI
1 TSB Revision
Page 323 of 738
Downloaded from www.Manualslib.com manuals search engine CIRCUIT DIAGRAMS - Remote Controlled Mirror Circuit321 ~
OPERATIONTROUBLESHOOTING HINTSI
Ll When teh remote controlled mirror switch isNeither right nor left mirror operates
operated while the ignition key is in “ACC” or
“ON” position, current flows through fuse No.1) Also cigarette lighter does not operateI
5 remote controlled mirror switch, remotel Check multi-prpose fuse No. 5.
controlled mirror, remote controlled mirror2) Cigarette lighter operates
switch, and ground, causing the mirror to move.l Check remote controlled mirror switch.
1 TSB RevisionI
Page 498 of 738

Downloaded from www.Manualslib.com manuals search engine 54-2
IGNITION SWITCH*..................................6
IGNITION SWITCH.................................
SPECIAL TOOL...................................6
LIGHTING SYSTEM................................35
FOG LIGHT....................................105
FRONT COMBINATION LIGHT AND
OPTICAL HORN LENS.........................106
HAZARD SWITCH..............................
110
HEADLIGHT...................................103
HIGH MOUNTED STOP LIGHT..................107
ON-VEHICLE SERVICE.........................100
POP-UP SWITCH AND FOG LIGHT SWITCH....109
REAR COMBINATION LIGHT AND
LICENSE PLATE LIGHT........................106
RELAY........................................108
RHEOSTAT....................................
110
SPECIAL TOOLS................................36
SPECIFICATIONS...............................
35
General Specifications..........................35Service Specifications..........................35
TROUBLESHOOTING............................37
METERS AND GAUGES..............................9
COMBINATION GAUGES........................33
COMBINATION METERS.........................31
ON-VEHICLE SERVICE...........................26
SPECIFICATIONS.................................
9
General Specifications............................9Sealant........................................ll
Service Specifications...........................11
TROUBLESHOOTING............................12
RADIO AND TAPE PLAYER.......................124
CD AUTO CHANGER..........................191
RADIO AND TAPE PLAYER WITH ANTI-THEFTSYSTEM.......................................156
MOTOR ANTENNA/ANTENNA FEEDERCABLE/AMPLIFIER.............................188
RADIO AND TAPE PLAYER....................186
RADIO REMOTE-CONTROL*...................186
SPEAKER.....................................
187
TROUBLESHOOTING...........................
124
REAR WINDOW DEFOGGER. . . . . . . . . . . . . . . . . . . . . .192
DEFOGGER RELAY. . . . . . . . . . . . . . . . . . . . . . . . . . . .204
ON-VEHICLE SERVICE. . . . . . . . . . . . . . . . . ~ ~. . . . . .203
REAR WINDOW DEFOGGER SWITCH . . . . . . -. . . 203
SPECIAL TOOLS.. . . s.. . . . . . . . . . . . . . . . . . . . . . . . .192
TROUBLESHOOTING
. . . . . . . . . . . . . . . . . . . . . . . . . . .193
REAR WIPER AND WASHER . . ~ *. . Refer to GROUP 51
SEAT BELT (BUZZER). . . . . . . . . . . . Refer to GROUP 52A
SEAT BELT (TENSION-REDUCERTYPE SEAT BELT) . . . . . . . . . . . . . . . Refer to GROUP 52A
SUPPLEMENTAL RESTRAINTSYSTEM (SRS)..-...............Refer to GROUP 52B
THEFT-ALARM SYSTEM . . . . . . . . . . . . . . . . . e . . . . . m.. s205
SPECIAL TOOLS.. . . . . . . . . . . . . . . . . . . .
m . . . . . . . .e205
TROUBLESHOOTING . . . . . . . . . . . . . . . . . . . . . . . . . . .206
WINDSHIELD WIPER ANDWASHER. . . . . . . . . . . . . . . . . . . . . ~. . .Refer to GROUP 51
Page 616 of 738
Downloaded from www.Manualslib.com manuals search engine 54-120CHASSIS ELECTRICAL - Cigarette Lighter
TROUBLESHOOTING
CIRCUIT DIAGRAM ‘d ~
IGNISWIT
2R-W*1.25R-W"
1
DEDICATEDFUSE
21
15A
100. 8510.851
--_____-----____-HEADLIGHT 1.&v&ALARM ;
I
. WINDSHIELD ';AiXRAND II
/ CIGARETTE; LIGHTERr,0.851
0.851
l(c-81)
G-’IG-W
12REMOTE CONTROLLED G-'1 MIRROR
-- ---- -- _----- --__.
G-’l(o-18)
G-’
$iEtX;;ORY /
III
G-W
>
ASHTRAY
ILLUMINATION
LIGHT
(D-17)
-JIL-
1IIII0.85l(D-19)B-‘I
/III0.85II
L-------------0.85.------------- __-__3
B-‘
B-‘
2
RHEOSTAT
0.85E
NOTEXl:HATCHBACK%E:CONVERTIBLE
HR14M08AA
1 TSB Revision
Page 621 of 738
Downloaded from www.Manualslib.com manuals search engine CHASSIS ELECTRICAL - Radio and Tape Player54-125 ~
,IGHTKHUIU REMOTECONTROL SWITCH
*LA‘1REL/
1.25R-\I
-l
DEDICATEDFUSE
c
-------
G-h
J/BrS(c-69)
1
50
G-W
a(D-36)(D-34)
RADIO AND TAPE PLAYER
I;
I1II:--_---- ______2- ---
r
J2
1---7
(T)GR-(T>GR-
B-k
(T>GR-
:T>GR-I
103,l (c-15)
(LH)(RH)
RHEOSTAT
REAR
SPEAKER
HRl4MOOAB
TSB Revision
Page 633 of 738
Downloaded from www.Manualslib.com manuals search engine CHASSIS ELECTRICAL - Radio and Tape Player
54-137 ~
L;
(c-(c-34)(c-57)00(D-36),(D-47)(F-06) FTC9
i
~~l~~[~!~~l~ -1
(F-33)(1czD2
Bfzi%$pJ q
HR14M03AB
J/BRADIO REMOTE
CONTROL SWITCHJ/B
3Y
_------
!
(Y-W)
3(1
I
CLOCK
SPRING
I
*m
(UP TO 1995Y
(Fgyiiz/g~-
MODELS).FULL AUTO A/C4----1I
I
RADIO REMOTE
CONTROL SWITCH'T;Tk\IGHT
-T-2R-W
IRADIO AND TAPE PLAYERIIII
------1
(T)Y-
;-----.
@$* -=.------)E
(T>Y-L 2(T>GR-1
(c-34),>3E-----_
(T)Y-L(T>GR-'L
------11
(T)GR-I(T>Y-IR (T>GR-R22
+-
(LH)
- ------- ----------------------‘i1
r 1
7
r
12
i%A'CPR (T)GR-R.FULL AUB-Y.MANUAL I.ELC-4A/i
-;t_310_----_,,21> B-Y
B-Y
lhll (c-15)
B-YjE;EW&AND
.FOG LIGHT
B-Y12
4m7+-RHEOSTAT(RH)\Y/
REAR
SPEAKER
1 TSB Revision
Page 639 of 738
Downloaded from www.Manualslib.com manuals search engine CHASSIS ELECTRICAL - Radio and Tape Player54-143
i@;X&GHT
-i-q-
.HEATER.MANUAL A/C.FULL AUTO A/C
RADIO AND
TAPE PLAYER
L1
------.
Y
t
L
. .i
t
(D-47)
B-E
1
CLOCK
SPRING
_IB-k
0
?ADIO REMOTE:ONTROL SWITCHRADIO REMOTE
CONTROL SWITCH
0-Y
RHE
3
---212.FULL AUTO A/C.MANUAL A/C.ELC-4A/T
1
.1 (c-15)
. ,$&AND
.FOG LIGHT
'TAT
HR14M04BB
TSB Revision
Page 642 of 738
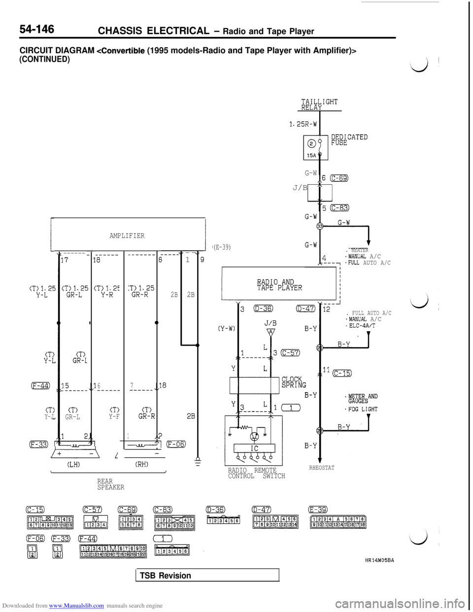
Downloaded from www.Manualslib.com manuals search engine 54-146CHASSIS ELECTRICAL - Radio and Tape Player
CIRCUIT DIAGRAM
(CONTINUED)
tT:i2E
--------71
i (%-i?
4
:*tL2'
CT)GR-1
15.------,/l6--__--
CT)Y-JCT)GR-L
L
(LH)
AMPLIFIER
_-----a
CT>Y-F
-_------E
5:T~R12-t
0
2B
a7---___,,l
(T)GR-r.?
1I‘4d(F-(-
(RH)\/
REAR
SPEAKER---
1
E
2B
28
/
1.25R-W
G-W,,6 (c-69)J/B
n
(E-39). HEATER.MANUAL A/C*FULL AUTO A/C
I
. FULL AUTO A/C.MANUAL A/C.ELC-4A/T
RADIO REMOTERHEOSTAT
CONTROL SWITCH
HR14M05BA
TSB Revision