Page 74 of 738
Downloaded from www.Manualslib.com manuals search engine 72CIRCUIT DIAGRAMS - Po,wer Distribution Circuit
POWER DISTRIBUTION CIRCUIT
(1994 MODELS)ij~
DEDICATEDFUSE
R-I
FUSIBLE LINK
I I00
00
063@30A40A
30A
l----!R-B2
MULTI-PURPOSEFUSE @3R-BD,.2(c-01)
L-R3R-B
2R-BI 3R-Bl3R-Bl 5W-E
ACTIVE,.3,\ 4.ACTIVE
#ROL ;E[;$GERE##EKP=iAULIC/\MODULE-------(c-05x). %F"\/ON,;-OFF\I.POWER
G-Y '" 5WINDOWSRELAY, 3B-R3B-REFS
2B-R(DEFOGGER2W-BIIOA
3
NOTE%:UP TO 1993 OctoDerB-R B-RR-B
v t7vABS;#$OL.HORN'HORN
RELAY
z6?OA
HROlMOlAA
TSB Revision
Page 75 of 738
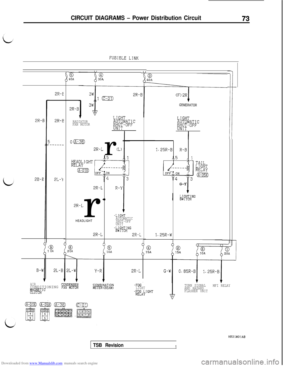
Downloaded from www.Manualslib.com manuals search engine CIRCUIT DIAGRAMS - Power Distribution Circuit73
FUSIBLE LINK
-
@
ii
030A
40A
";1
$OA
LIGHTRADIATOR
FAN MOTORAUTOMATIC&-$;-OFF
0m
2R-Lr(L)ON
4
2R-LR-k
41
2R-Lr
HEADLIGHT
2R-L
i.LIGHTAUTOMATIC
SHUT-OFF
UNIT
.&FT"gHNG
2R-L
2R-E
2R-B
LIGHTAUTOMATIC&{Yi-l-OFF
I
2R-f
2B-I
2R-E
I-----_
2L-k
9OA
B-W2L-B
AIRCONDITIONING F;p!E$IC
1.25R-BR-B
,.5,\ 1/\ -
G-Y
1.25R-Cv
010AaOA015A
TURN SIGNAL
AND HAZARDMFI RELAY
FLASHER UNIT
2R-LG-WCOMBINATION
METERCBEAM).FOG.LIGHTQfAi+GHT\i7C
HROlMOlAB
TSB Revision1
Page 76 of 738
Downloaded from www.Manualslib.com manuals search engine CIRCUIT DIAGRAMS - Power Distribution Circuit
POWER DISTRIBUTION CIRCUIT (1994 MODELS) (CONTINUED)
,ij ’
G-W
G-W
J/B
5W-B
G-W
[Pgfi; COMBINATION
.AIR CONDITIONINGSEAT BELT.HIGH MOUNTEDCONTROL PANELSOLENOIDT'#;;T-ALARMSTOP LIGHT.GLOVE BOX.THEFT-ALARM.STOP LIGHT.ILJ&INATION
HORN RELAY
MULTI-
RE"""
AMPLIFIER
2B-Y*
+-IOD ORSTORAGE43WFE CONTROLCONNECTOR
S;SRTDIAGNOSIS
.STARTER MOTOR
~3%""
LIGHI~~~l&INATION
dM&CT'ON
.LICENSEPLATE LIGHT.RADIO AND TAPE PLAYER.REARCOMBINATION
LIGHT
.RHEOSTAT.VANITY MIRRORILLUMINATIONLIGHT
*fi;;~yL~CK
'i&fEyLgCK
.MOTOR ANTENNACONTROL UNIT
$#~~NATION
*DATA LINKCONNECTOR.DOME LIGHT.DOOR LIGHT*TRANSAXLECONTROL MODULE
.KEYLESS ENTRYCONTROL UNIT,LIGHT AUTOMATICSHUT-OFF UNIT.LUGGAGECOMPARTMENTLIGHT.RADIO ANDTAPE PLAYER.SPARE CONNECTOR
i ~~~@i~wE I
E~;LE;[~NIC
SUSPENSION
CONTROL UNIT
.ENGINE\ UN11/
CONTROL MODULE
HROlMOlBA
TSB Revision
Page 77 of 738

Downloaded from www.Manualslib.com manuals search engine CIRCUIT DIAGRAMS - Power Distribution Circuit75
IGNITION3y; 6
SWITCH
(c-59)
I
IGlVI
2B-YpL52B-W *2L-BIOD OR%ii&!OR
II
B-W
JGENERATOR7RELAY__-_--_-_____-___-_____________
2B-W
.ENGINECONTROL MODULE.IGNITION COIL.IGNITION POWERTRANSISTOR.MFI RELAYTRANSAXLE
ki8%EL
f
,BACK UP LIGHT.LIGHT AUTOMATICSHUT-OFF UNIT$$~TDIAGNOSIS
I$
'ABSPOWER RELAY(UP TO 1993 October).AIR CONDITIONINGCOMPRESSOR LOCK
CONTROLLER
.AIR CONDITIONINGCONTROL UNIT'R MOTOR
.BLOWER MOTORRELAYCHI)
.--_--
.ⅇqORY
.ETACS UNIT
+ L-l'#fiBi;'"
.REMOTECONTROLLED
MIRROR
+jjf$ESS CONTROLic
.REARINTERMITTENT
WIPER RELAY
.WASHER MOTOR.WIPER MOTOR.WIPER RELAY
.AUTO-CRUISECONTROL UNIT.ETACS UNIT.MOTOR ANTENNACONTROL UNIT.RADIO ANDTAPE PLAYER.ACTIVE AERO\
CONTROL UNIT.SPARECONNECTOR$@RC~UISE
MAIN SWITCH(jiifb%E)
~f$J&CRUISE.SPEED SENSOR
~'$@~NATION$/$TDIAGNOSIS
.&y&NATION.TURN SIGNALAND HAZARD
FLASHER UNIT
.ETACS UNIT.MOTOR ANTENNACONTROL UNIT
T
REMARKTHE ABOVE CIRCUIT DIAGRAM SHOWS THE CURRENT FLOW AT THE
IGNITION KEY POSITION "ACC","ON" AND "ST" COMBINED.
BE SURE TRACE THE APPROPRIATE CIRCUIT DEPENDING ON THE
IGNITION KEY POSITION.
HROlMOlBB
TSB Revision
Page 79 of 738
Downloaded from www.Manualslib.com manuals search engine CIRCUIT DIAGRAMS - Power Distribution Circuit77I
FUSIBLE LINK
1!
0
0040A
30A
(F)2R
TGENERATOR&w,:l
3w
@ISOA
2R-I2R-l
1
2R-B
LIGHTRADIATOR
FAN MOTORAUTOMATIC
SHUT-OFF
UNIT
3
6B
LIGHT
AUTOMATIC
WT-"""
I5
1.25R-BR-B
..5,\1C\
/
"4
12
-
G-Y
LIGHTING
SWITCH
NOTE:l:HATCHBACK:E:CONVERTIBLE
2R-I
2B-F
2R-E
)-----_
3OA
2R-Br(L)
5
2R-BIN
1
(R-Y)2R-L
2R-Lr
LIGHTAUTOMATIC
f%YT-""' HEADLIGHT
2R-LLIGHTING
SWITCH
i3OA015A0.IOA
B-WY-R2R-LG-h
CONDENSER~%DITIONING FAN MOTORCOMBINATIONMETERlBEAM).FOG
p~.w~;IcLIGHT.;'fA\'GHT7
TURN SIGNALMFI RELAY
AND HAZARD
FLASHER UNIT
0 (A-05X) (A-36)Ic-ol)
TSB Revision
Page 80 of 738
Downloaded from www.Manualslib.com manuals search engine 78CIRCUIT DIAGRAMS - Power Distribution Circuit
POWER DISTRIBUTION CIRCUIT (1995 MODELS) (CONTINUED)
F&J&C2TEDQC
Y
G-W
G-W
[W/; COMBINATION
G-W
5W-B
v,AIR CONDITIONINGSEAT BELT
CONTROL PANEL
SOLENOID
.RADIO AND TAPE PLAYER*REARCOMBINATION
LIGHT
.RHEOSTAT.VANITY MIRRORILLUMINATION
LIGHT
+AMPLIFIER
IOD ORSTORAGECONNECTOR
1
+W&T-ALARM.HIGH MOUNTEDSTOP LIGHT.THEFT-ALARM.STOP LIGHTHORN RELAYr
.ACTIVE AEROCONTROL UNIT'*AIR COMDITIONINGCONTROL UNIT4Mi8EU68FT$#~NATION
-_--
d
-
;L MODULE.ETACS UNIT.FOOT LIGHT.lGNITION KEYCYLINDER
ILLUMINATION
LIGHT
.KEYLESS ENTRYCONTROL UNIT
.DOME LIGHT.DOOR LIGHT.TRANSAXLECONTROL MODULE~~~~~$~~NIC
SUSPENSION
CONTROL UNIT
.LIGHT AUTOMATICSHUT-OFF UNIT.LUGGAGE
COMPARTMENT
LIGHT
*RADIO AND
TAPE PLAYER
(A-13X) (c-68) Fm) (c-70)
mi fg piq p&q
NOTE=:HATCHBACK
HROlM02BA
TSB Revision
Page 81 of 738

Downloaded from www.Manualslib.com manuals search engine CIRCUIT DIAGRAMS - Power Distribution Circuit79
FUSIB ELINK 4bB
Y3w c
' CONTROL
.;gTDIAGNO~~~
,STARTER MOTOR$$$;ER
IOD ORSTORAGECONNECTOR
4’
I
-J4a
*(c-70)
2L-w
2B-W
.ETACS UNIT
;I$@fLE
l-----l
IMODULE$i$ESS CONTROL
f$#;&TE
.REMOTECONTROLLED
MIRROR
.ENGINECONTROL MODULE,IGNITION COIL,IGNITION POWERTRANSISTOR,MFI RELAY
!
.REARINTERMITTENT
WIPER RELAY
.WASHER MOTOR.WIPER MOTOR.WIPER RELAY;gL"itGER
.AUTO-CRUISECONTROL UNIT.ETACS UNIT.MOTOR ANTENNACONTROL UNIT.RADIO ANDTAPE PLAYER
A.ACTIVE AERO
CONTROL UNIT:.#J$$;U'SE
MAIN SWITCHj&CRUISE
.ETACS UNIT.MOTOR ANTENNACONTROL UNIT.SPEED SENSOR.$WSTDIAGNOSI~
.TURN SIGNALAND HAZARD
FLASHER UNIT
TI
2.A1CC
R CONDITIONINGIMPRESSOR LOCK.CONDENSOR
INTROLLERFAN MOTOR
RELAY
R CONDITIONING
lNTROL UNITf~~~;~L"NIC
$kL"A"&R MOTORSUSPENSION
CONTROL UNIT
.BLOWER MOTOR.RADIATORRELAYCHI)[;FAyOTOR$&&NATION.~~~~RNATION
NOTETHE ABOVE CIRCUIT DIAGRAM SHOWS THE CURRENT FLOW AT THEIGNITION KEY POSITION "ACC", "ON" AND "ST" COMBINED.BE SURE TRACE THE APPROPRIATE CIRCUIT DEPENDING ON THEIGNITION KEY POSITION.
::HATCHBACK
HROlM02BB
1 TSB Revision
Page 83 of 738
Downloaded from www.Manualslib.com manuals search engine CIRCUIT DIAGRAMS - Power Distribution Circuit81
FUSIBLE LINK
I
0
0040A
30A
(F>2R
7GENERATOR&wJ
3w
0?OA
2R-E2R-E
2R-B
1RADIATOR
FAN MOTORLIGHTv
AUTOMATICSHUT-OFFUNIT
2R-r
2B-F
2R-F
i-----_
@10A
10m
2R-B
r
CL:
51
I
3
2R-B
NG1
1.25R.
2R-W1.25R-W
1N
1
(R-Y)
I!HTOMI:$-C
HTITCb
2R-L
?R-L
I-HEADLIGHT
2R-L
LIGHTING
SWITCH
NOTE=l:HATCHBACK:2:CONVERTIBLE
@20A010A015A
Y-R2R-LG-
AIRCONDENSER
CONDITIONING FAN MOTORCOMBINATION'FOG
ggI"c;1 CMETERCBEAM)LIGHT
$fAbIGHT
TURN SIGNAL
AND HAZARDMFI RELAY
FLASHER UNIT
HRO lM03AB
1 TSB Revision